Wouldn’t it be great to own a business just a few floors down from where you live? Designed by an architectural company from Canada named Studio Junction, the Mjölk House represents a modern shop house that can be found in Toronto. The residence comprises a commercial area on its ground floor as well as domestic living arrangements on the upper floors, which makes it a perfect home for a shop owner.
This home is a part of the W.H. Ives Tailor Building in Toronto, and it was renovated masterfully and with utmost attention to detail in order to provide contemporary living arrangements as well as optimum conditions for commercial activities. The shop itself represents a design store and gallery that showcases various works of art signed by modern Japanese and Scandinavian artists. The shop as well as the abode above were inspired by Northern design principles and feature a carefully selected mix of materials and textures.
Mjölk, the shop itself, features a mix of white, black and wood elements while the Mjölk House boasts white oak for its cabinetry, stairs, bathrooms, kitchen and island. With a superb blend of technology and natural materials, the Mjölk House is a contemporary and comfortable dwelling as well as a remarkable place of business that managed to retain a connection to its past despite being anchored firmly into the present.
From the Studio Junction:
Mjölk House (pronounced mi-yelk) is a contemporary version of a traditional shop house.
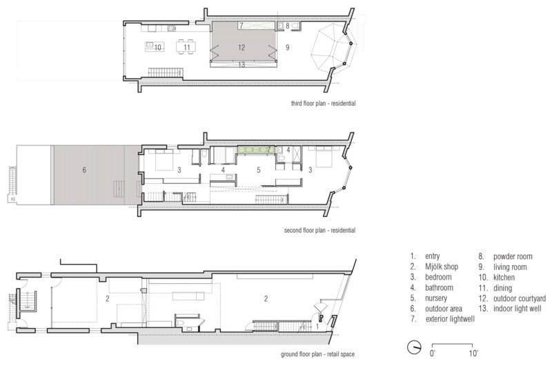
The renovation of the W.H. Ives Tailor Building (1889) in the Junction includes:
1. a restoration of the Historically Listed façade, one of the last pressed metal commercial facades on a Toronto main street
2. a renovation of the ground floor commercial into a design store and gallery
3. a renovation of the second and third floor residential units into a single family home
Inspired by a traditional shop house typology of commercial on the ground floor with residential above, Mjölk House speaks about an alternative to the single-family residence in Toronto’s urban fabric. The specific challenges pertaining to this mixed use property include : a long narrow lot, noise and privacy issues to the main street and rear laneway, lack of light to the middle of the building, and lack of connection to the outdoors.
Mjölk House shows how a landmark building can be renovated in a contemporary manner while still respectful and in keeping with the physical character of the street. Courtyards and light wells are used to provide privacy, outdoor space, natural light and air, and allow Mjölk House to successfully adapt to an urban mid-block siting where there is no traditional front or rear yard. Through innovative design, this urban shop house exemplifies how an individual building and proprietor can contribute to a vibrant street life and neighborhood rejuvenation.
Mjölk is an independent design store and gallery which represents classic and current Scandinavian and Japanese designers, artists and artisans. Offering a carefully curated selection of beautifully designed pieces, Mjölk focuses on functionality, craftsmanship and timeless simplicity. In Mjölk House, both Mjölk and the dwelling above are inspired by a Northern aesthetic where the material palette is selective and restrained. With owners that value handcrafted items, wood is used throughout this shop house for its incomparable warmth and connection to nature. In this manner, the individuality of wood is celebrated.
In Mjölk, black and white elements are highlighted with moments of wood. Wood was chosen for its natural warmth, versatility, ease of portability and pre-fabrication. There was a condensed time frame for design, construction and installation. Computer modeling and CNC cutting were used for the complex curves of the plywood elements of the feature wall, floating c-shelf and storage cabinets. This worked in conjunction with traditional hands-on woodworking techniques, such as the crafting of the reception desk of reclaimed lumber, and the white oak sliding screen doors. Sustainable features include the exterior cladding of charred wood with a natural oil finish.
For the interior, the main feature wall is re-purposed from a previous installation, with the addition of new storage units. Cladding material are offcuts : left over wood often relegated to the waste bin and landfill. The reception desk is reclaimed Douglas fir from a local Toronto factory. And the screen wall frame is FSC approved white oak, with the glass re-purposed from existing structural glass partitions.
In Mjölk House, the design elements used to organize and enhance the dwelling are the courtyards, natural light and woodwork. White oak is used throughout for the kitchen, island, cabinetry and bathrooms, stairs, guards, and trim. The slatted doors, bi-fold doors and fixed windows that wrap the inner courtyard and light well are also FSC approved white oak. Wide plank Douglas fir from British Columbia is used for the flooring and living room shelving units.
Efforts have been made throughout the design and construction to thoughtfully and efficiently use materials and technology. The courtyard and light well driven design allows a large amount of natural day light. The bi-fold doors, awning windows, and interior light well take advantage of a natural cross-ventilation system in the summer.
Heating and cooling is organized by zones with adjustable radiators and ductless air-conditioning. In this contemporary space, there has been much experimentation with hand crafted wood and traditional finishes. Millwork is often finished with soap flakes, lye or a water-based varnish. Exterior finishes at the courtyard include falun paint on rough pine, and a lime wash on the brick wall.













More Similar Articles Like This
The JKC1 House in Bukit Timah, Singapore
The Sophisticated Casa Villa Flamingo in Spain
Plain Geometric Residence Designed by Lidija Dragisic
Wonderful Yachting Club Villas at Elounda Beach by Davide Macullo Architects
6 Garden and Lawn Tips to Get Ready for Spring
Beautiful Apartment in Stockholm for $1 Million
Tips for Choosing the Right Blue Paint Color for Your Dining Room
The Superb Villa Verai on Phuket Island, Thailand