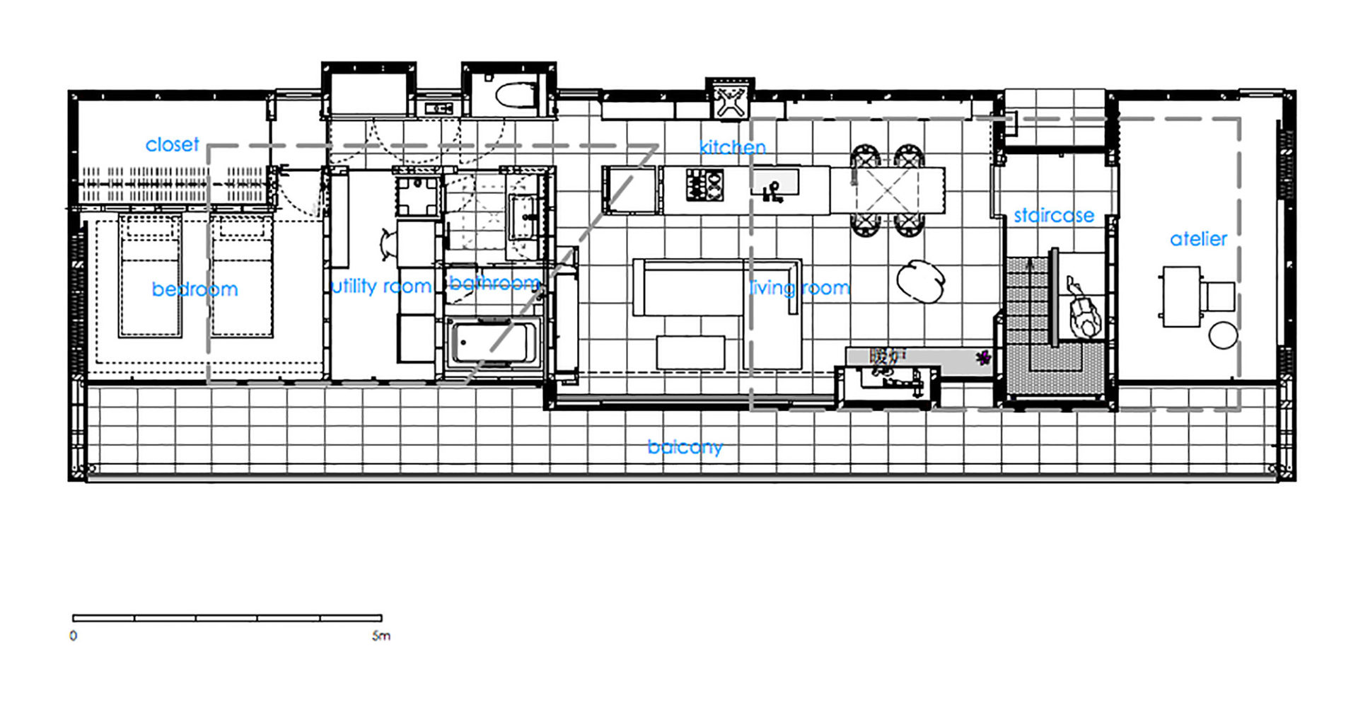
As its name suggests, the Floating House appears to be floating on a rice field in Shiga Prefecture, Japan. It was designed by Satoru Hirota Architects, it was completed in 2014, and it boasts 1,571 square feet of living space. In order to ensure the privacy of the inhabitants, the architects created a gradual circular wall that surrounds the property.
The residence also comprises a gallery that is entered separately and benefits from access to a courtyard and a garden. Both of these spaces are linked by a terrace, which was inserted between the gallery and the study. Most of the Floating House’s interiors feature raw concrete finishes and a plethora of glass, especially at the ground level. The upper floor is composed of three concrete volumes, some of which flaunt wooden finishes throughout for a touch of warmth and naturalness.
Architects: Satoru Hirota Architects
Location: Japan
Architects in Charge: Satoru Hirota, Yasuko Hirota
Area: 146.0 sqm
Project Year: 2014
Structural Design: nieda+hisaeda architects / Taizen Nieda, Mitsuyoshi Yoshida
Contractor: Tsuda Constructions Co.,Ltd. / Yusuke Kishimoto


















More Similar Articles Like This
Extraordinary Constance Halaveli Maldives Resort
Best paint colors for the living room
Beach House CN – A Superb Contemporary Home in Peru
Astonishing El Tovar by the Sea
The Superb Maradiva Villas Resort & Spa in Mauritius
Gayton Road Residence by Paxton Locher Studio
Outstanding Bodrum Houses in Yalikavak, Turkey
Vibrant Concrete Floor Paint Colors to Elevate Your Space