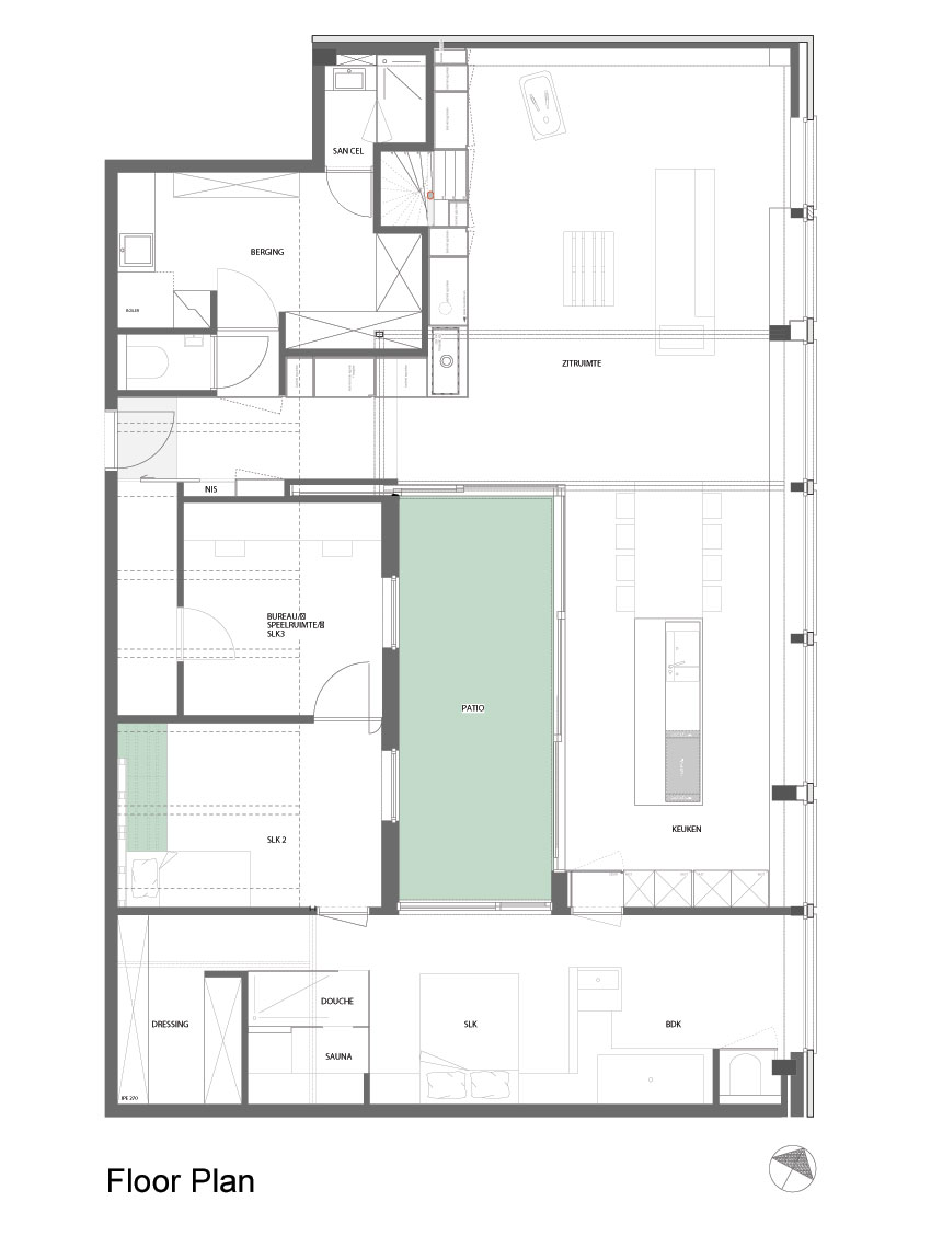
Loft 8 is a magnificent renovation project that was carried out for a loft within the city of Deinze in Belgium. Measuring 2,000 square feet, the loft was recreated into a superb 3-bedroom apartment by a company called Aeon Architecten, and it now stands ready to ensure fabulous accommodations and impressive living conditions for its lucky owners.
Even though the building initially housed a factory, its purpose is now a much more domestic one as it has been transformed into several luxurious abodes. Loft 8 is found on the first floor of the building and so it features a flat roof. Once inside, the visitor is instantly struck by the superb, minimalistic yet elegant living arrangements and by the subtle yet gorgeous décor elements. Everything was arranged with utmost geometric harmony in mind, which means that the entire apartment gives off a sense of cleanliness and efficient organization.
Apart from the state-of-the-art appliances found in the kitchen and main living room, the residence also impresses with a large amount of high-end amenities such as wood-burning fireplaces, efficient lighting arrangements integrated into the ceiling, a modern dining table with enough seating for 8 and a superb staircase that ensures access to the level above.
From the Aeon Architecten:
Aware of the design possibilities and interesting architectural elements of the factory a group of buyers including Kevin Nechelput, Architect, AEON Architecture, came together, purchasing the old factory, in Deinze, Belgium, with the ambition of redeveloping the site into a number individual dwellings.
From structural steel, to exposed brickwork and original décor, each dwelling contains striking reminders of the purpose and functionality of the factories history that the new owners were keen to preserve.
“A factory has an inextricable heritage of utility and purpose. A factory has a job to do and this something that we wanted to bring back to the building. Its role is now to be a home for many,” explains Nechelput. “We have always enjoyed the original aesthetics of the building and were keen not to create a sterile environment that hid the past of the factory. For example, the block colours painted on the walls of my own apartment are just as we found them; it was where the toilets used to be and each was painted a different colour.”
“Equally as important was getting the interior flow of the space right, it had to suit the lifestyles of the people who live there. For my own apartment this meant filling the space with natural light and creating a flow throughout the space – including the shared roof terrace.”
“All the furniture from the kitchen, living space and bathroom as well as master bedroom has been custom designed to create a unity through out the loft. All hallways doors are also incorporated in the furniture.”
Nechelput’s wife and civil engineer, Valerie Van Gucht added, “Our loft is completely situated on the first floor, under a flat roof. In searching for an ingenious way to access our roof terrace we came across EeStairs and because we wanted to keep our patio clear the access point to the roof had to be practical but also as small as possible. In the 1m2 staircase we found the perfect solution. The only difficulty is that the maximum elevation of the 1m2 by EeStairs is just 290cm, but we needed a stair for 380cm. So, working with EeStairs we were able to incorporate the 1m2 into our custom furniture by concealing extra steps into a drawer so when the staircase is not in use it’s completely invisible.”
Van Gucht also said, “EeStairs are the inventors of a brilliant concept in the 1m2 staircase. The simplicity and ingenuity of the concept reflected our own design vision for the apartment. We found a great partner in EeStairs to execute the project!
Image Credit: Homedsgn.com // Ranny Vergauwen




















More Similar Articles Like This
Seamlessly Apartment by the Beach by ZZ Architects
Spectacular Luxury House in Sarasota, Florida by DSDG Inc. Architects
Secluded Naladhu Island in Maldives
Gorgeous And Spacious Home In Sunset Strip
5 Ways to Turn Your Yard Into a Fancy Space
6 Garden and Lawn Tips to Get Ready for Spring
Lawn Care Tips, The Basics For Each Season
Wonderful Yachting Club Villas at Elounda Beach by Davide Macullo Architects