Located within the historical city center of Lisbon, the Lapa building replaces a much older structure that was torn down and rebuilt by a team of architects from João Tiago Aguiar. Completed in 2015, the project covers 4,520 square feet of living space and was rebuilt respecting some of its original design cues and measurements.
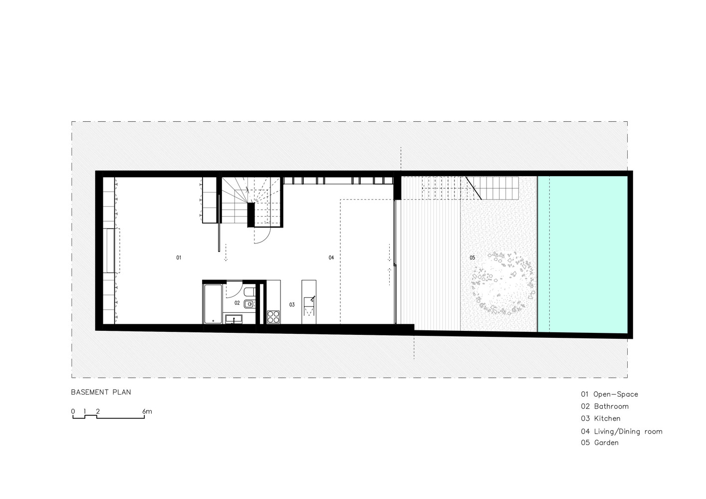
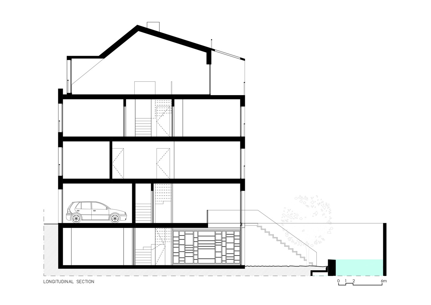
Spreading on four floors, the structure was inserted on the western edge of the lot and comprises three apartments. One is a duplex 1+1 bedroom apartment that occupies a semi buried floor and level zero, while another is a 2-bedroom apartment located on the first floor. Another three-bedroom duplex occupies the third floor as well as the attic. The plot offers enough parking for two cars.
The duplex apartment on the ground floor is connected to a garden and a swimming pool. The apartment on the first floor was designed to house a tenant who lived in the former building for over five decades. The three-bedroom duplex is entered from the upper floor, and it ensures accommodations for the building owners.
From the architect:
The Project is about the reconstruction of a building located in Lisbon’s historical city centre. The existing building in an advanced degradation condition and lacking architectural quality was demolished and completely rebuilt, reshaping its compartmentalization, without distorting the memory of the environment in order to preserve the urban heritage of the neighbourhood, but guided by a contemporary intervention that marks the time of its execution.
Both façades were demolished and rebuilt, keeping however, through metrics and materials, the memory of the building.
The building’s intended use is for housing, is built on the west edge of the plot and it is developed in 4 floors (one semi buried and the latter corresponding to the attic), totalling a gross floor area of about 350m2 of new construction.
The program consists of 3 apartments: one duplex 1+1 bedroom apartment in the semi buried floor and level 0, one 2 bedroom apartment on the 1st floor and one 3 bedroom duplex on the 2nd floor and its attic. 2 parking places inside the plot were also provided. The vertical communication between floors is ensured by a common staircase that unfolds in the core of the building itself.
The entrance to the duplex apartment with the semi buried floor and ground-floor is made through the top level. This way you have access to a wide space that overlooks the bottom floor and which immediately allows a general perception of the whole area as well as the view of the outer space/patio, for the exclusive use of this fraction. The lower floor totally opens up for this garden with swimming-pool, leaving the social areas along the façade under a double room’s height.
Since the purpose of the 2 bedroom apartment on the 1st floor was to re-house one tenant who lived in the former building for over 50 years, it was designed without great virtuosity.
The entrance to the 3 bedroom duplex in the upper floors, which houses the building owners, is made by the lower level where the rooms are. From this floor and just by the entrance starts a staircase that leads us to the top floor, reserved for the social area. The ceilings follow the shape of the roof, ripped open to two mansards on the front façade and opening into a terrace at the back, from where you have the best views of the city and of the Tagus river.
Architects: João Tiago Aguiar
Location: Lisbon, Portugal
Architecture Collaboration: Renata Vieira, Ana Caracol, Marina Carreiras, Sílvia Amaral
Builder: OFICINA DOS SONHOS
Surface Area: 150m2
Area: 420.0 sqm
Project Year: 2015
Photographs: Fernando Guerra | FG+SG


















More Similar Articles Like This
Opulent Mandarin Oriental Hotel in Paris
10 Different Types of Blue Paint Colors
Spectacular Rooftop Apartment by Innocad
The JKC1 House in Bukit Timah, Singapore
Marvelous Anantara Dhigu Resort
Vibrant Wood Tones: Explore a Spectrum of Spray Paint Colors!
Exceptional Coronado Bay Front Estate in California
How Seattle Lawn Care Service Deals With Overgrown Lawns