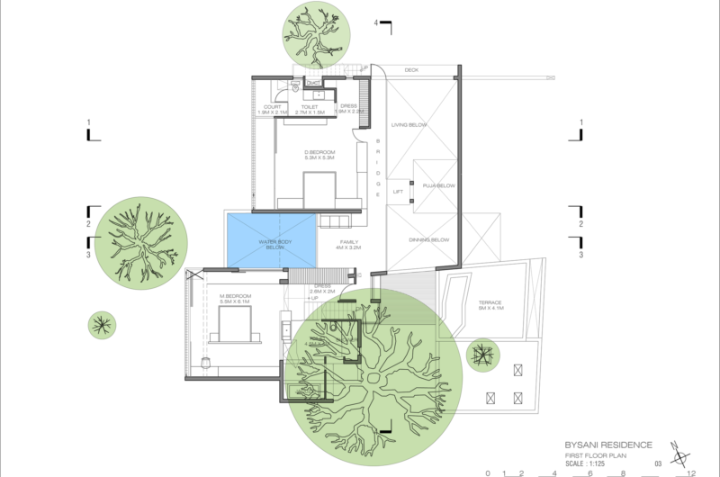
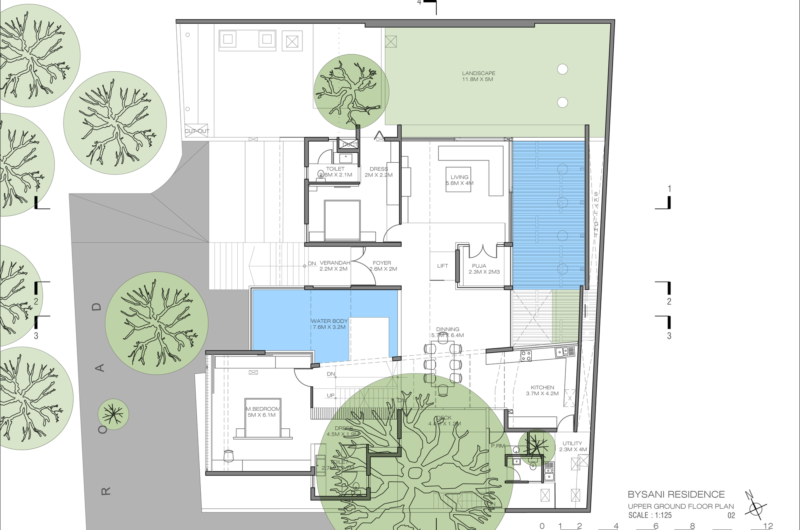
Sketched out by the experts at Architecture Paradigm, the Wilson Garden House was built in 2011 and can be found in Bangalore, Karnataka, India. Featuring no less than 7,000 square feet of living space, this superb home was designed from the ground up to represent a haven of relaxation and wellness that would ensure fabulous living conditions and sublime comforts.
As its name suggests, the residence is located in Wilson Garden and is surrounded by lush vegetation that guarantees a plus of privacy and shade. Accommodations include 5 bedrooms but this place also features separate entertainment areas such as a home theater, a spa and a superb swimming pool. That being said, the Wilson Garden House is definitely a great place to come home at after a hard day of work, but it is also well equipped to handle a small party or a gathering.
On the inside, we encounter a generous amount of conveniences, high quality finishes and superb furnishings complemented by contemporary décor elements. Flat screen TVs, large beds, comfortable sofas and a plethora of glass elements are just some of the highlights of this amazing home. The main living room is particularly impressive because it is constantly flooded with natural light throughout the day thanks to its large windows and convenient orientation.















More Similar Articles Like This
Unique Click Clack Hotel In Bogota, Colombia
Heavenly Lily Beach Resort & Spa In Huvahendhoo, Maldives
10 Different Types of Blue Paint Colors
Stunning Banyan Tree Ungasan Bali in Indonesia
Superb Luxury Penthouse in Portomaso, Malta
Santa Barbara Style Home in Paradise Valley, Phoenix
The JKC1 House in Bukit Timah, Singapore
Opulent Mandarin Oriental Hotel in Paris