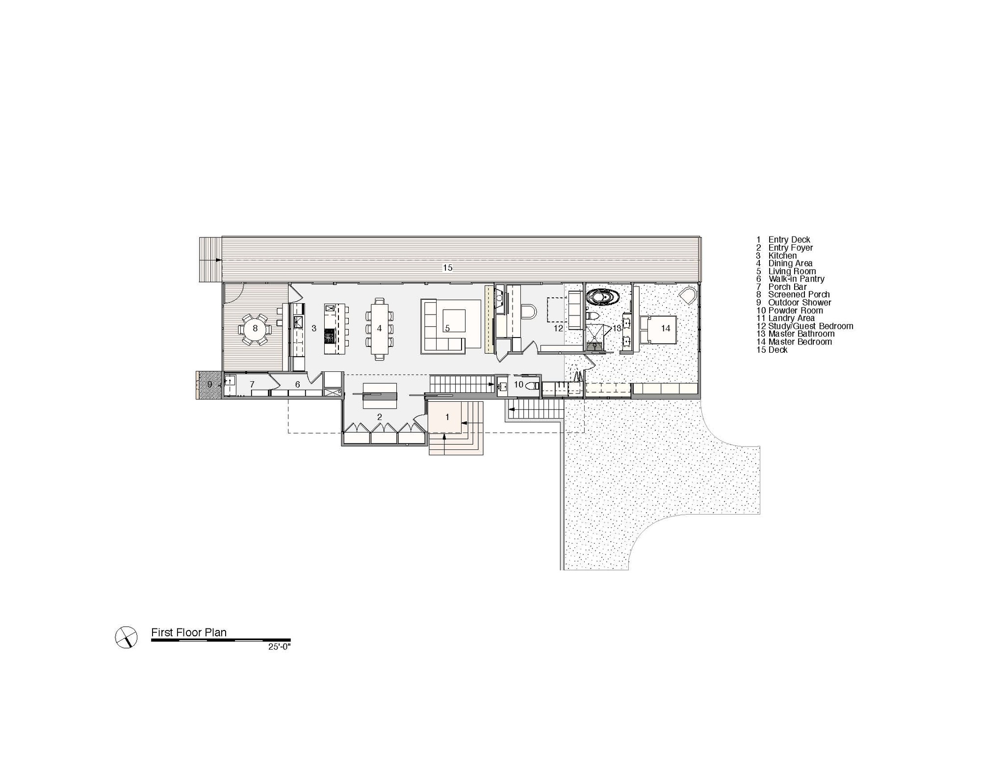
Designed by Stelle Lomont Rouhani Architects and built in collaboration with a firm named ASUL, the Green Woods House is located in Amagansett, New York, USA, and it replaces an existing Acorn house. The owner wanted a modern house that would be equipped with a geothermal system and roof-mounted solar panels, but unfortunately, local site conditions and a tight budget prevented the architects from implementing these facilities.
However, they decided to focus on passive solar design principles and passive cooling, which is why they made full use of the shading ensured by nearby trees and implemented a sizeable overhang. During the cold months, sunlight enters the house through special glass that boasts a high solar heat gain coefficient and provides much needed heat. Furthermore, solar hot water heaters were installed on the roof. These facilities along with the house’s efficient insulation allowed the abode to earn an Energy Star rating.
From the architect:
The owner of an existing Acorn house located in the woods in Amagansett, New York came to us with the request to design in its place a modern single-family residence with as much attention to energy use and sustainability as possible. With budget in mind we embarked on an exploration of to achieve this using conventional building methods, which quickly led to a dead end. Enter ASUL, a company from Arizona that specializes in a system based design methodology and a kit of parts site-built assembly process. Through this collaboration we were able to achieve the design at a much lower cost to the client. While the owner initially had hopes of employing roof mounted solar panels to generate electricity, and a geothermal system for cooling and heating, it soon became clear that neither the large forest canopy, nor the heavy clay content of the soil were going to make either feasible.
Maximizing the solar orientation, we turned to integrating passive solar design principles into the structure. A large overhang and the deciduous trees allow for natural shading in the summer. In the winter, the low sun penetrates glass with a very high solar heat gain coefficient, and heats the floor, which in and of itself acts as a thermal mass. The portion of the roof that does receive adequate sunlight receives solar hot water heaters. These panels tie into an advanced mechanical system to provide radiant heating throughout the house. The north wall is heavily insulated, with strategic openings used for cross ventilation. The combination of a high level of attention to insulation and air quality throughout give the house an Energy Star rating.
Narrative on Sustainability
A 3,000 square foot Energy Star rated single-family residence in the woods of Eastern Long Island takes advantage of the site and orientation to maximize passive solar energy use. The southern façade, with floor to ceiling glazing relies on a continuous overhang and the surrounding forest canopy for shading in summer time. In winter, the process reverses with the lower sun penetrating the glass and allowing the thick masonry floor to capture the heat. Roof mounted solar water panels tie into an advanced mechanical system and provide radiant heating throughout. This project is a collaboration with ASUL who have developed a locally adaptable site-built process combining a kit-of-parts assembly model with contemporary materials and labor management practices to achieve affordability.
Architects: Stelle Lomont Rouhani Architects
Location: Amagansett, NY, USA
Design Team: Frederick Stelle, Viola Rouhani, Luca Campaiola, Esra Unaldi
Photographs: Matthew Carbone
General Contractor: ASUL Adaptable System for Universal Living
Structural Engineer: Struktur Studio
Mechanical Engineer: Kolb Mechanical Corp
Energy Consultant / HERS Rater: Glenn Lamay
Energy Consultant: Green Logic












More Similar Articles Like This
Stunning Banyan Tree Ungasan Bali in Indonesia
These Top Tips Will Help You to Turn Your Garden into the Ultimate Glamping Site!
Boracay Resort & Spa in the Fascinating Philippines
Marvelous Anantara Dhigu Resort
Green Gables Home In Fairfield, Connecticut, United States
Vibrant Wood Tones: Explore a Spectrum of Spray Paint Colors!
Behr’s Brilliant Blues: 70 Shades of Stunning Paint Colors
Unique Click Clack Hotel In Bogota, Colombia