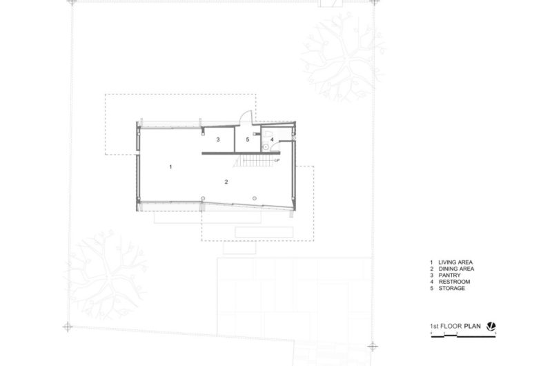
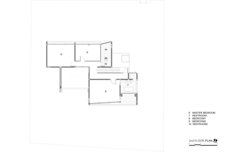
If the client wants something then he should better receive it. In this case, the owner wanted his home to express his character regarding space and form. IDIN Architects who designed the W House managed to discover their clients wish and started from his passion for travelling and kayaking. A very helpful element was a picture of a boat sailing on the river. The whole house was built round this idea, so even the bedrooms seem to be like a boat supported underneath by the river for sailing.
The orientation of the building was determined by the wind and sun direction. Because it has large glass windows, the wooden shutter covering the house brings its contribution in shading the light and creating privacy when needed.
The W House in Nakhon Ratchasima, Thailand is a residence built with passion for passion.
Photos by Spaceshift Studio






























More Similar Articles Like This
Pure Perfection: Discover the Top White Paint Colors for a Flawless Décor
Amazing Four Seasons Resort Bora Bora
Heavenly Lily Beach Resort & Spa In Huvahendhoo, Maldives
Best paint colors for the living room
6 Garden and Lawn Tips to Get Ready for Spring
Extraordinary Constance Halaveli Maldives Resort
The Sophisticated Casa Villa Flamingo in Spain
Exceptional Coronado Bay Front Estate in California