Kiko House project is a beautiful 2,583-square-foot house, completed in 2009 by Ohnmacht Flamm Architekten. It is situated in Zirl, Innsbruck-Land, Tyrol, Austria.
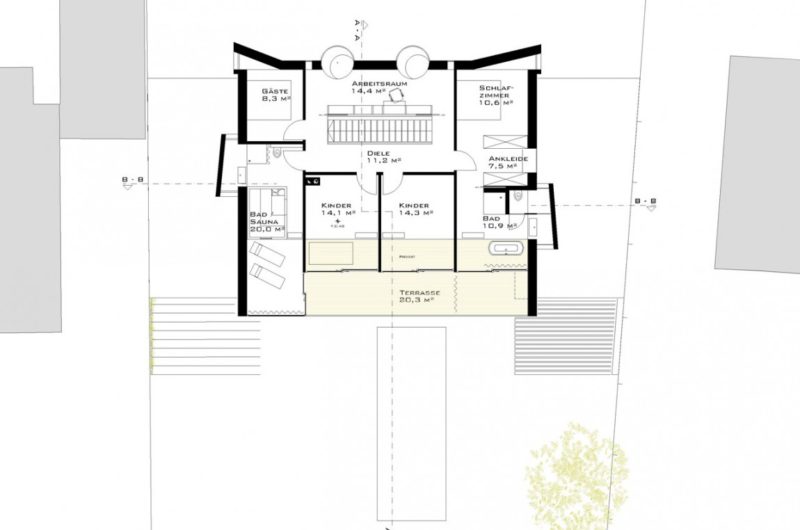
Even before the building process began, the owners agreed to mask the close surroundings and define only selected views into the distant landscape. The result was a contemporary residence with a large living space that opens into the garden and landscape. Above this space is a compact volume that includes the bedrooms and children’s spaces, which feature work-desk and reading spaces. Direct visual connection to the street is made through two perspex hemispheres, from which one can admire the surroundings sitting in transparent Bubble Chairs.
Other façade openings, that resemble narrow blinkers, offer beautiful views of the mountains. All levels are connected through a vertical crevasse with glass surfaces and skylight. Although the upper-floor spaces are quite small, the use of multiple vertical and horizontal spatial relations creates the impression of a lavish space.
Photos by: Henning Koepke













More Similar Articles Like This
Secluded Naladhu Island in Maldives
A Superb Italianate Mansion in California, USA
Stunning Sustainable Home in Costa Rica by SPG Architects
Vibrant Wood Tones: Explore a Spectrum of Spray Paint Colors!
Pure Perfection: Discover the Top White Paint Colors for a Flawless Décor
Spectacular Luxury House in Sarasota, Florida by DSDG Inc. Architects
Outstanding Bodrum Houses in Yalikavak, Turkey
Heavenly Lily Beach Resort & Spa In Huvahendhoo, Maldives