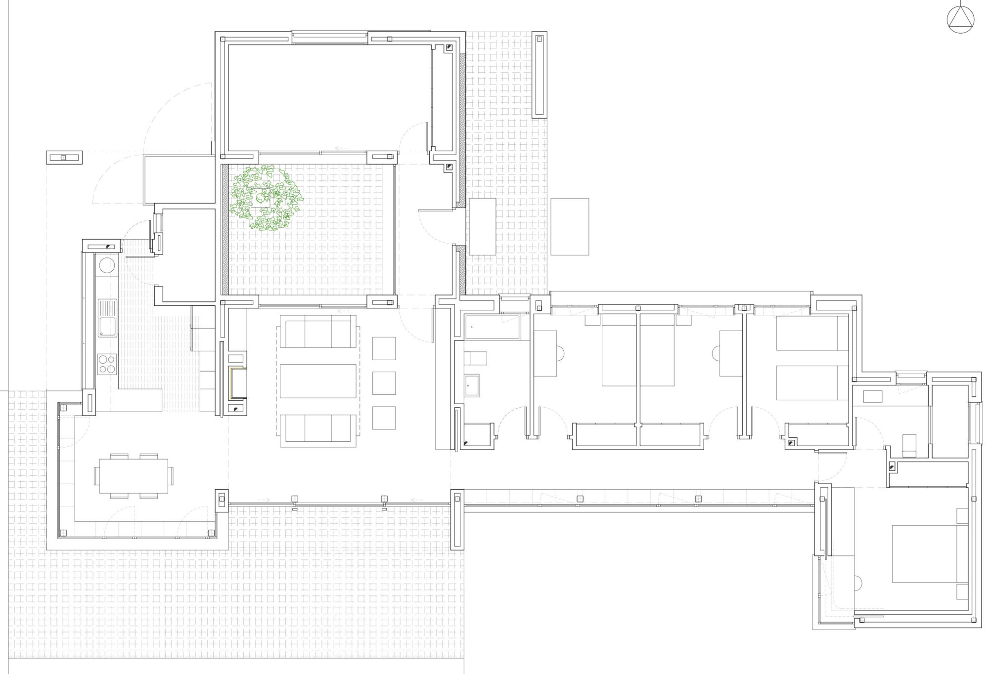
The Vivienda de Invierno entre los Pinos residence designed by José Manuel Peinado is a classic home with clean lines and fine elements. It was built to serve as a winter home and is located in Huelva, Spain.
The design of the house is concentrated mostly on saving energy: the large glass windows are orientated towards the south permitting the house to remain warm over the night. The excessive overheating due to the solar radiation is controlled by motorized awnings.
Photos by Javier Orive

































More Similar Articles Like This
Exquisite Crossacres Mansion In Surrey, England
Contemporary BO House In Envigado, Antioquia, Colombia
Extraordinary Constance Halaveli Maldives Resort
Lovelli Residence: Mediterranean-Style Dwelling in Bali
Spectacular Rooftop Apartment by Innocad
Secluded Naladhu Island in Maldives
6 Garden and Lawn Tips to Get Ready for Spring
Vibrant Concrete Floor Paint Colors to Elevate Your Space