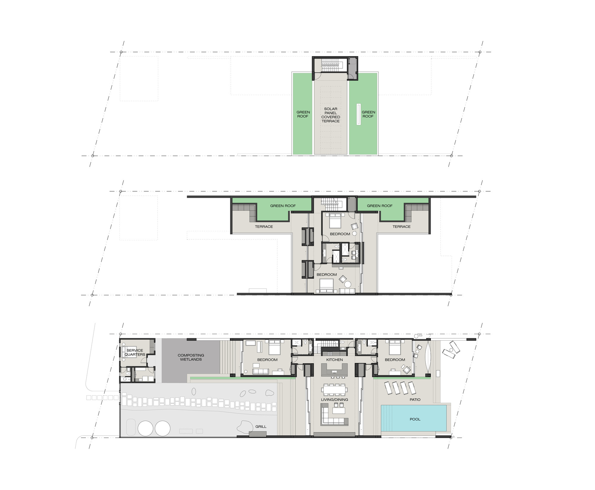
Apart from representing one of the most luxurious homes in Tulum, Mexico, Casa Xixim is also a perfect example of modern architecture and self-sufficiency. It features 4,800 square feet of living space and was completed in 2015 by Specht Harpman. It was built on a narrow lot that faces a protected bay, and it boasts a narrow pathway that leads visitors directly to the combined living, kitchen and dining space, which opens up to a nearby beach.
Adjacent to this space are four luxurious bedrooms, which can also open up to the outdoors should the need arise. As far as sustainability is concerned, a photovoltaic canopy provides much needed energy while ensuring shade for a large terrace on the roof. The terrace was also designed to collect rainwater that can be used after it is filtered and stored properly. Waste is processed using a digester and an artificial wetlands system. Who wouldn’t want to live in a home such as this?
From the architect:
This residence, on a narrow lot fronting a protected bay in Tulum, Mexico, was designed to be fully self-sufficient, and to immerse the occupants in the range of environments that the site offers.
A narrow path brings visitors through dense vegetation to a large living / dining / kitchen space that is fully open to the beach beyond. Four bedrooms, above and adjacent to this space, can also be fully opened to the exterior. The transparency of the house allows prevailing winds to flow through and provide cooling while maximizing views of the site.
The house is powered by a photovoltaic canopy that shades a large rooftop terrace. This terrace also collects rainwater that is filtered and stored for use. Other roof areas are planted with native species that provide insulation and screening. All waste is processed through a digester and artificial wetlands system. Casa Xixim is an ecoluxe, grid-tied, net-neutral house that works in harmony with its surroundings.
- Location: Tulum, Q.R., Mexico
- Area: 4800.0 ft2
- Project Year: 2015
- Photographs: Taggart Sorensen














More Similar Articles Like This
Tips for Choosing the Right Blue Paint Color for Your Dining Room
Green Gables Home In Fairfield, Connecticut, United States
70 Shades of Green: Benjamin Moore’s Vibrant Paint Colors
Spectacular Luxury House in Sarasota, Florida by DSDG Inc. Architects
The JKC1 House in Bukit Timah, Singapore
Seamlessly Apartment by the Beach by ZZ Architects
Wonderful Yachting Club Villas at Elounda Beach by Davide Macullo Architects
Dreamy Oceanfront Chateau In West Vancouver, Canada