This fabulous residential project was created thanks to a collaboration between Rachael Rush and a company called Strachan Group Architects. The residence is located in Auckland, New Zealand, in close proximity to Takapuna Beach, and it offers amazing views of the seemingly endless ocean.
On the outside, the Boatsheds home might not make passersby turn their heads but on the inside things are completely different. The interior design is based on plenty of timber elements that help create an atmosphere of warmth and comfort. The furnishings are modern and contrast nicely with the warm shades of the timber since they feature colder tones of gray, black, white and sometimes green.
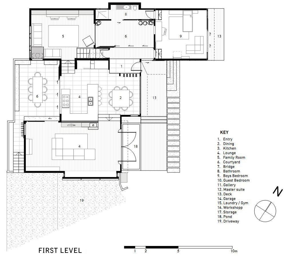
Numerous large windows found in the main living areas allow plenty of natural light to flow freely throughout. As far as versatility is concerned, the Boatsheds residence boasts plenty of it thanks to a series of walls that can be folded, lifted or tucked out of the way according to the owner’s preference.
From the Strachan Group Architects:
CONTEXT
On a constrained, compact urban site, a stones throw from Takapuna Beach, the three-stepped gables of these black ‘boatsheds’ appropriately reference our boating and beach culture. The sliding forms reveal a solution beyond the standard connotations of a home, a bespoke incubator for the clients’ lifestyle.
The corner site, challenged by two 5m (16.4 ft) front yards and the blunt presence of a three-storey neighbour hard on the North-West boundary, stimulated an approach of layered complexity with ample transparency to capture light, sun and glimpses of the pohutukawa and baiting ocean.
DESIGN
Simplicity of the exterior form is contrasted by the highly crafted timber interior, exhibiting the skilled artistry of the builder. A diverse succession of multi-connected spaces create a threaded flow of movement, whilst each maintains a distinct and sequestered quality.
The house opens and closes in response to shifts in weather and programme, with walls that lift, fall, slide, fold, shut down or disappear. This is a house with intent to engage the viewer, the viewed and the operator with sense and intrigue.



















More Similar Articles Like This
Wonderful Yachting Club Villas at Elounda Beach by Davide Macullo Architects
Santa Barbara Style Home in Paradise Valley, Phoenix
Unique Click Clack Hotel In Bogota, Colombia
Best paint colors for the living room
Beach House CN – A Superb Contemporary Home in Peru
5 Ways to Turn Your Yard Into a Fancy Space
Green Gables Home In Fairfield, Connecticut, United States
Heavenly Lily Beach Resort & Spa In Huvahendhoo, Maldives