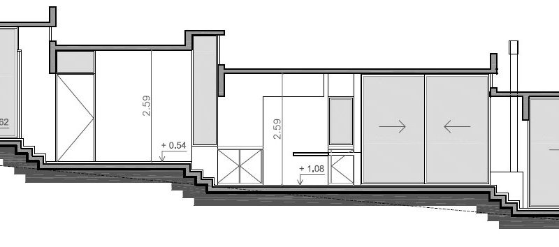
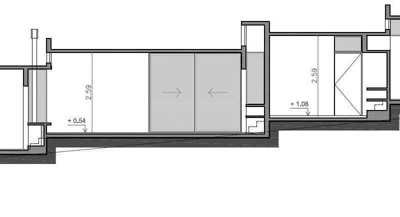
The AV House was designed by BAK Architects in 2011 at the specific order of a client located in Villa Gesell, Buenos Aires, Argentina. Because of the concrete and the glass, this home seems to blend with the surroundings.
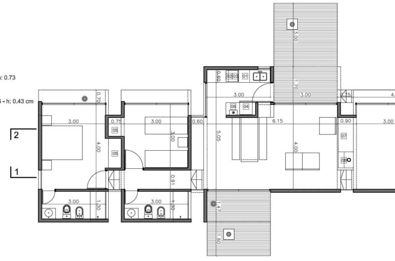
It is very basic, featuring just two bedrooms, one with private bathroom, a kitchen and some places to be outdoors, in conclusion very simple.
Because there’s no natural gas in the area, the heating system was resolved by combining a fireplace, bottled gas stoves and electric stoves, which is as safer as it could be.
Everything excepting the beds, couches and chairs is solved in concrete.
Photos by Gustavo Sosa Pinilla

















More Similar Articles Like This
Wonderful Yachting Club Villas at Elounda Beach by Davide Macullo Architects
The Superb Villa Verai on Phuket Island, Thailand
Plain Geometric Residence Designed by Lidija Dragisic
Spectacular Luxury House in Sarasota, Florida by DSDG Inc. Architects
Seamlessly Apartment by the Beach by ZZ Architects
Beach House CN – A Superb Contemporary Home in Peru
6 Garden and Lawn Tips to Get Ready for Spring
Exquisite Crossacres Mansion In Surrey, England