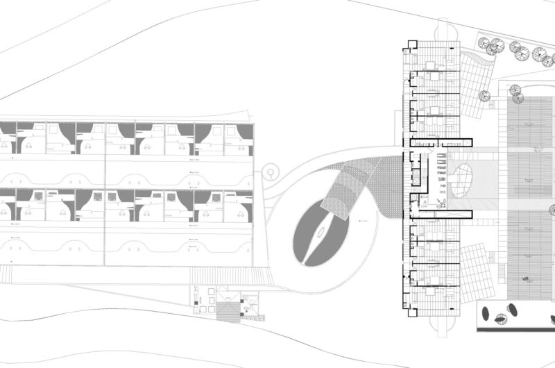
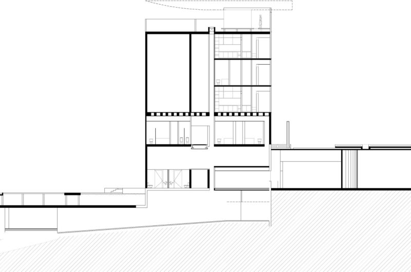
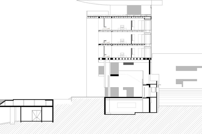
Taller Aragones completed the Encanto Hotel in 2012 and the result is spectacular. Located in Acapulco, Mexic, this contemporary wonder was created with great attention and dedication. By only looking at these pictures you would have never guessed that this incredible construction was created with little resources, economic materials and local labor. Its spaces are very intimate and offer the guests all the comfort and tranquility they need.
Fine architecture is transposed into such architectural masterpieces. Here’s the living proof that high-quality leaves a trace in time.
Photos by Joe Fletcher


















































More Similar Articles Like This
Secluded Naladhu Island in Maldives
Best paint colors for the living room
Lovelli Residence: Mediterranean-Style Dwelling in Bali
Gayton Road Residence by Paxton Locher Studio
Extraordinary Constance Halaveli Maldives Resort
Tips for Choosing the Right Blue Paint Color for Your Dining Room
Green Gables Home In Fairfield, Connecticut, United States
A Superb Italianate Mansion in California, USA