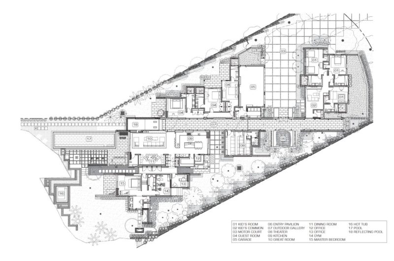
The Kona Residence is an architectural masterpiece placed between cooled lava flows and gently modeled by Santa Monica-based studio Belzberg Architects in collaboration with interior design studio MKL Studio. It is the winner of Freestanding House Award from Interior Design magazine 2010 edition.
This 8,000 sq. ft. exquisite construction offers gorgeous views of the eastern volcanic mountain ranges and also of the western ocean horizons.
It’s very important for a home to be eco-friendly so, in order to accomplish this status, the Kona house has two separate arrays of roof mounted photovoltaic panels to maintain the environmental sensitivityanduses darker lava stone to help heat the pool water with the help of solar radiation.
Almost every detail of the house is created upon the Hawaiian tradition and as an example to that, you may notice the entry pavilion which reflects the traditional gift specific to the arrival ceremony.
We must say that we love the Hawaiian hospitality and now, we’ve started to like their homes as well.





















More Similar Articles Like This
Plain Geometric Residence Designed by Lidija Dragisic
Beach House CN – A Superb Contemporary Home in Peru
Seamlessly Apartment by the Beach by ZZ Architects
Opulent Mandarin Oriental Hotel in Paris
The JKC1 House in Bukit Timah, Singapore
Saguaro Palm Springs by Joie de Vivre
6 Garden and Lawn Tips to Get Ready for Spring
Gayton Road Residence by Paxton Locher Studio