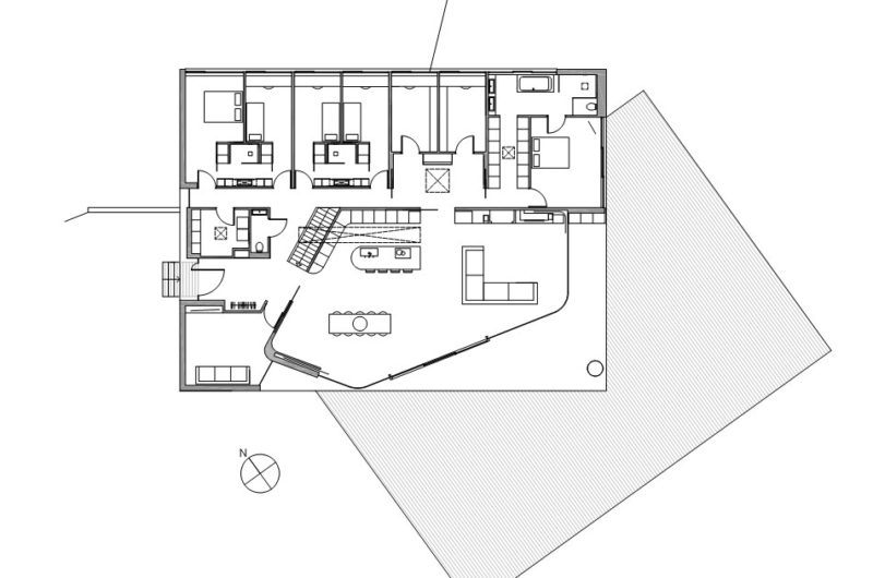
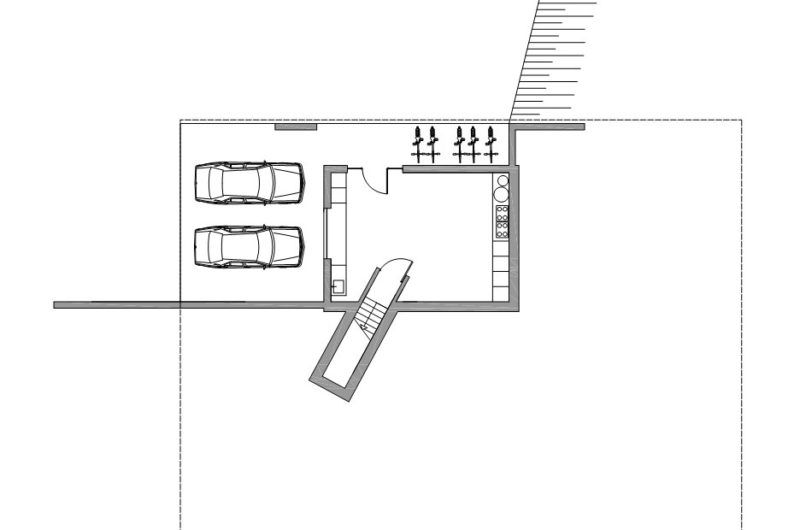
Completed by Rotterdam-based studio 123DV, Villa Veth is located in Hattem, Netherlands. This 5,100-square-foot residence is built on a magnificent landscape, surrounded by forest, meadows, sandy dunes, willow bushes and grasslands.
The living area is oriented towards the south, and provided with large glass walls, which minimize the inside-outside boundary and let the sun and natural light flow into the house. The living room features beautiful black-and-white furniture, which gives an elegant feel to the entire residence. One can admire the beautiful surroundings even on colder days, as part of the terrace is covered and includes floor heating.
The sleek, shiny, metallic exterior architecture contrasts with the cozy and elegant interior design. We’ve seen many contemporary houses with different boxes placed at odd angles, but in this case the architects chose to locate only one floor above the ground, and this is what makes this residence unique.
























More Similar Articles Like This
Amazing Four Seasons Resort Bora Bora
Stunning Sustainable Home in Costa Rica by SPG Architects
How Seattle Lawn Care Service Deals With Overgrown Lawns
5 Ways to Turn Your Yard Into a Fancy Space
Santa Barbara Style Home in Paradise Valley, Phoenix
These Top Tips Will Help You to Turn Your Garden into the Ultimate Glamping Site!
Exquisite Crossacres Mansion In Surrey, England
Different Types Of Foundations For Summer Houses and Garden Buildings