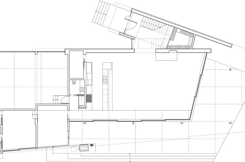
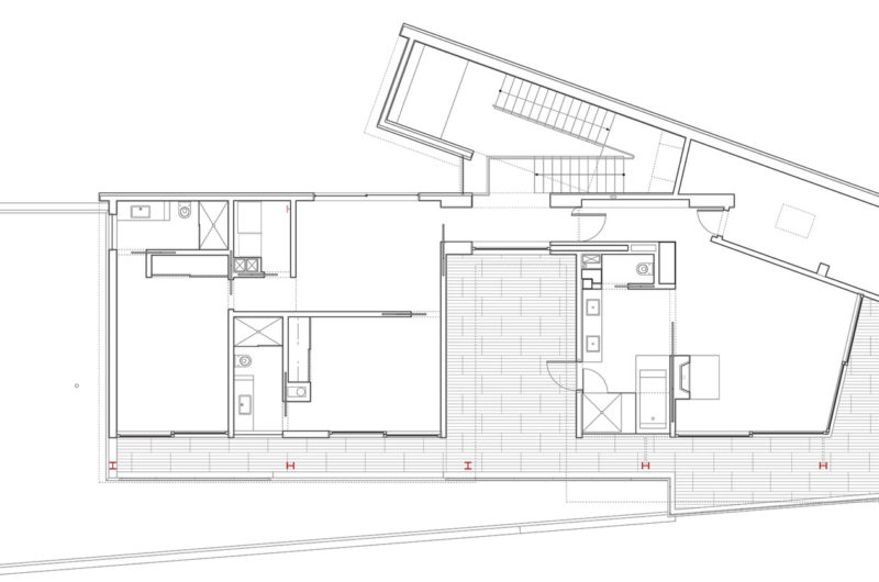
Things are not always as they seem. The Mandeville Canyon Residence stands as a proof for that. Completed in 2010 by Griffin Enright Architects, this contemporary home is located in Los Angeles, California, USA and is a spectacular mansion despite its modest appearance. It offers gorgeous and dramatic views over the canyon.
The living room was transformed into a secondary porch by eliminating the telescoping doors that formed the wall to the backyard. The first one is a covered porch which resulted from the shifting geometry between the ground floor and the second level. It abounds in light due to its southeast orientation.
There’s nothing ordinary about this house and you’re about to experience the hidden face of a job well done.
Photos by Tim Street-Porter























More Similar Articles Like This
Gorgeous And Spacious Home In Sunset Strip
Outstanding Bodrum Houses in Yalikavak, Turkey
A Superb Italianate Mansion in California, USA
The JKC1 House in Bukit Timah, Singapore
Unique Click Clack Hotel In Bogota, Colombia
Stunning Banyan Tree Ungasan Bali in Indonesia
Beautiful Apartment in Stockholm for $1 Million
Behr’s Brilliant Blues: 70 Shades of Stunning Paint Colors