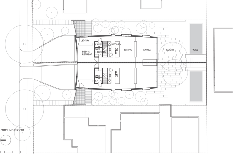
This 2093-sq-ft property in Victoria, Australia, was designed by BKK Architects. The project implied designing elegant townhouses with 4 bedrooms.
Since the emphasis was set on high quality design, the architects tried to figure out a way to create a stunning façade that delimitates the street part from the privacy offered by these residences. Their solution was to have one concave façade made of timber with windows disposed so that no one on the street could say how many separate houses or even levels were hidden by the wall.
On the side, the glass windows show the luxury inside the building. The black bricks create an emphasis on the dark large windows.
These dwellings are made to be energy efficient and generate savings for their owners. Their energy rate is of 6 stars, they save water and energy because of the appliances used in the design, and hot water is heated using solar energy.


















More Similar Articles Like This
Tips for Choosing the Right Blue Paint Color for Your Dining Room
Benjamin Moore Exterior Paint: Vibrant Shades for a Striking Home
Opulent Mandarin Oriental Hotel in Paris
Astonishing El Tovar by the Sea
Outstanding Bodrum Houses in Yalikavak, Turkey
10 Different Types of Blue Paint Colors
Spectacular Luxury House in Sarasota, Florida by DSDG Inc. Architects
Shadowed Depths: Vintage-inspired Paint Colors for Dark Basements