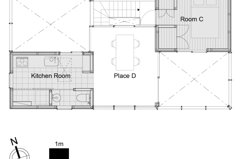
Offering no more than 409 square feet of living space, the Transustainable House illustrates a perfect example of how we can live comfortably in smaller abodes, and that’s a big deal because some of the world’s most crowded and most urbanized areas are constantly growing and running out of space. This residence can be found in Chofu, Tokyo, Japan, and it was completed by a firm named SUGAWARADAISUKE on a very small site, which is not at all unusual for a city like Tokyo.
The private living arrangements follow in a diagonal pattern, and the common areas are placed between them in order to save space while helping create a “semi-indoor” residential area from the remaining site surface. The residence is versatile to some extent, meaning that it can support more than adequate lifestyles for multiple inhabitants. Obviously, this is not because the home itself is spacious enough to be inhabited by many, but because numerous citizens prefer to live a nomadic life that involves switching homes on a regular basis.
Transparency, natural light and utmost thermal comfort were key factors that were taken into consideration during the designing process of the Transustainable House. There are 4 distinct settings for the air conditioning system called natural condition outdoor, mid-controlled outdoor, mid-controlled indoor and high-controlled indoor.
Photos by Jérémie Souteyrat

















More Similar Articles Like This
Extraordinary Constance Halaveli Maldives Resort
Dreamy Oceanfront Chateau In West Vancouver, Canada
These Top Tips Will Help You to Turn Your Garden into the Ultimate Glamping Site!
Heavenly Lily Beach Resort & Spa In Huvahendhoo, Maldives
Best paint colors for the living room
Lawn Care Tips, The Basics For Each Season
Gorgeous And Spacious Home In Sunset Strip
Exploring the New World of Luxury Hoteling