Sustainable, modern and easy on the eyes, The Corner is a 4,951-square foot home that is located in Melbourne, Victoria, Australia. Constructed by Bower Architecture in 2014, it features a single garden at its back as well as a sculptured facade that’s balanced out by a set of external screens and curves. Natural light flows freely throughout the living spaces thanks to sliding glass doors and large windows, which also contribute to impressive cross ventilation during the hot days.
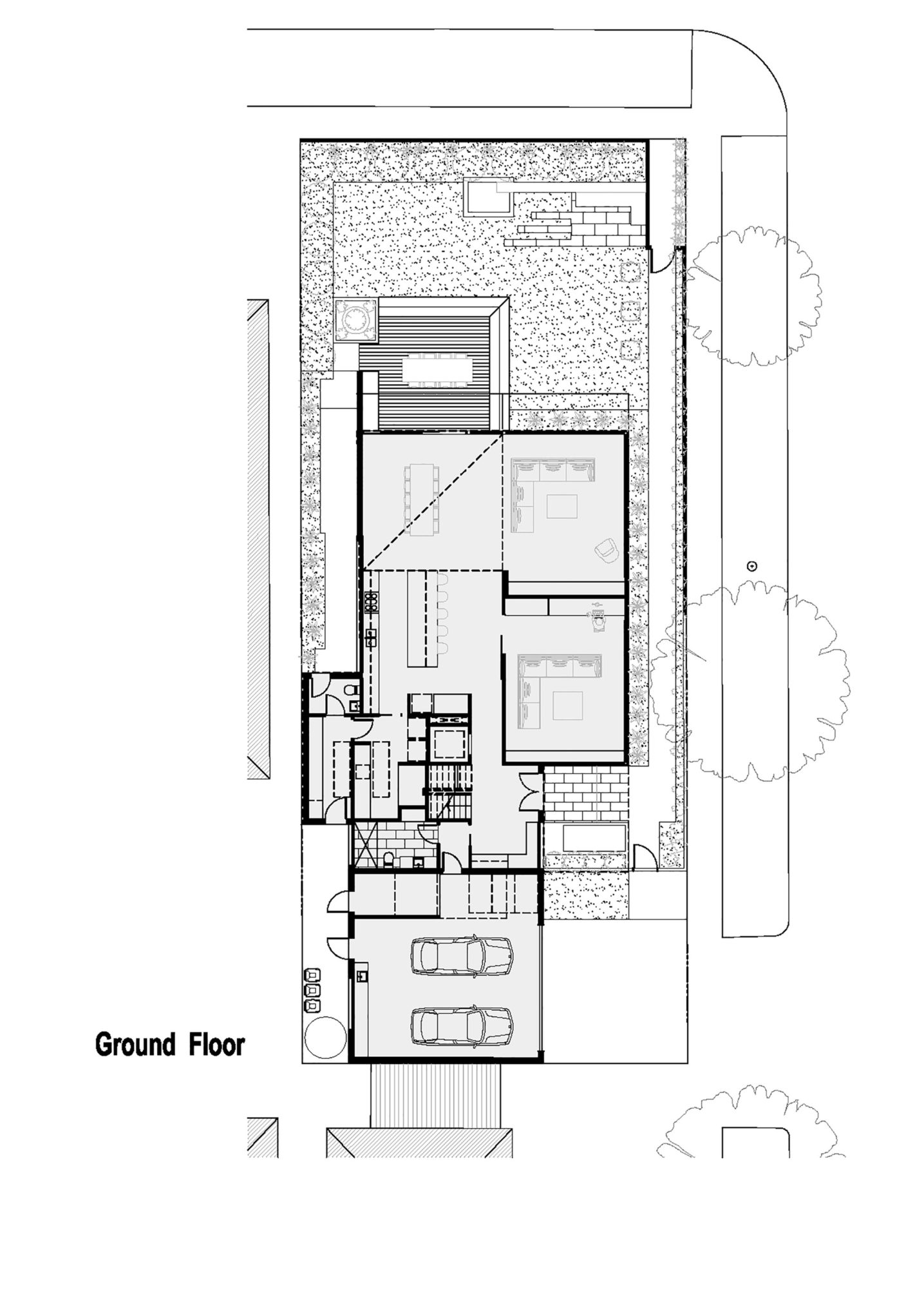
Even though the available lot is not the biggest, the architects managed to create a home that feels and looks spacious. Guided by architect Jade Vidal, the team implemented an impressive mix of sustainability, comfort and modernism into a regular sized abode. Interior highlights comprise an open space living room complemented by a kitchen and a dining area, high quality wooden floors and ceilings as well as high-end amenities that sustain a comfortable lifestyle.
From the architect:
An integral part of our philosophy is that the best design solutions come out of the most difficult spatial problems. The brief for the Corner House presented us with the requirement for a relatively large house and interior spaces on a medium sized site. The challenge was how to satisfy this brief with a contemporary sustainable house that connected to a quality outdoor space and resulted in an exciting external expression that was sensitive to its surroundings.
Rather than the traditional inclusion of front and rear gardens, the design concept sacrificed a rear garden in order to create a single, bigger front garden. The result of siting the new dwelling towards the southern rear end of the site to maximise the setback from the main frontage results in a house which is both exciting and restrained in its street presence, satisfying its brief and good sustainable design principles.
External curves and screens soften the patterned sculptural façade, which floats above its concrete base. The variety of interior living spaces are filled abundant natural light, cross ventilation and warm materials, resulting in a comfortable and open low energy home all year round.
The Corner can be reduced into two simple ideas; a house with one high amenity garden and a broken down building mass. Once this was clarified during the design process many future design decisions could be made in regards to these two interlocking ideas – how building mass was broken down and softened, where the living spaces and bedrooms would be, how the entry would work and so on, the expression of the house to the street and passer-by and so on.
We understand that the scale and proportion of a building is an essential priority in Architecture and aim to carefully balance these to achieve memorable outcomes. The Corner is sited, shaped and orientated to allow its owners to enjoy a liveable and welcoming house which interacts with landscape and streetscape.
Architects: Bower Architecture
Location: Melbourne VIC, Australia
Architect in Charge: Jade Vidal
Design Team: Jade Vidal, Chema Bould, Anna Dutton, Ben Shields, Rose Heeley
Area: 460.0 sqm
Project Year: 2014
Photographs: Shannon McGrath
Builder: Macasar Building
Structural Engineer: Meyer Consulting
Building Surveyor: Nepean Building Permits
Landscape: Justine Carlile Landscape Design










More Similar Articles Like This
Beautiful Apartment in Stockholm for $1 Million
The Superb Maradiva Villas Resort & Spa in Mauritius
70 Shades of Green: Benjamin Moore’s Vibrant Paint Colors
Stunning Banyan Tree Ungasan Bali in Indonesia
Gorgeous And Spacious Home In Sunset Strip
10 Different Types of Blue Paint Colors
Saguaro Palm Springs by Joie de Vivre
Plain Geometric Residence Designed by Lidija Dragisic