Completed in 2010, Carpinteria Foothills Residence is a luxurious house located in a small seaside city called Carpinteria, in Santa Barbara County, California, USA.
It would have been a pity not to take advantage of the beautiful surroundings, and so the designers at Neumann Mendro Andrulaitis Architects chose to open the home towards the amazing coastal ridge-top site using operable glazed walls. The cut native sandstone walls perfectly integrate the building into the surrounding area.
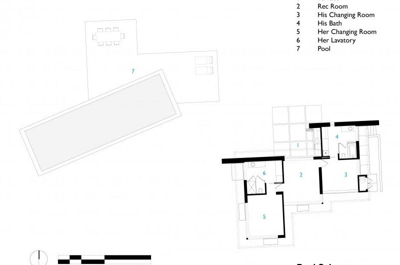
The residence includes a guest room, a master suite, a study, an open living space, and a contained den. The pool, pool house and guesthouse are located on a lower terrace, among the oaks. The architects followed the owners’ ideas too, and created a tranquil and comfortable home for art, retreat and living.
Photos by: Ciro Coelho



















More Similar Articles Like This
Best paint colors for the living room
Tips for Choosing the Right Blue Paint Color for Your Dining Room
Saguaro Palm Springs by Joie de Vivre
Superb Luxury Penthouse in Portomaso, Malta
Secluded Naladhu Island in Maldives
Outstanding Bodrum Houses in Yalikavak, Turkey
Behr’s Brilliant Blues: 70 Shades of Stunning Paint Colors
Boracay Resort & Spa in the Fascinating Philippines