Even though its name might lead you to believe otherwise, the Spiral House does not actually boast a spiral-shaped design. Actually, this contemporary abode features a remarkable, 2-story based layout that was designed and built in order to comply with the local restrictions regarding the environmental and height standards.
The Spiral House can be found in Lower Fairfield County Coast, Connecticut and was sketched out by Joeb Moore + Partners Architects. Built in 2009, the residence features 3,900 square feet of living space and boasts with a remarkable interior design that oozes sophistication and elegance. Moreover, a plethora of glass elements were used during the construction process in order to ensure utmost transparency, thus limiting the boundaries between the indoors and outdoors.
The Spiral House was built using only the finest and most reliable materials – a necessary aspect considering the coastal New England storm surges that plague the area from time to time. All in all, the amazing Spiral House represents a superb place to come home to, not just because of its stunning views and irreproachable living conditions but also because of its reliability, great looks and perfect positioning in one of the most amazing areas of Connecticut.
Photos by Jeff Goldberg / Esto, Todd Mason / Halkin Photography
From the Joeb Moore + Partners Architects:
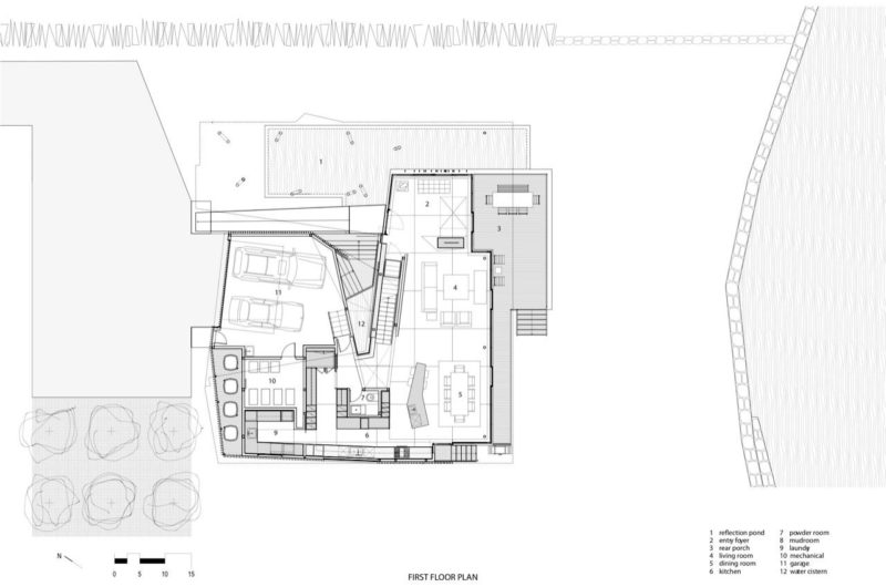
Situated along the Connecticut shoreline of Long Island Sound, the Spiral House seeks to engage, enhance and reflect the surrounding coastal climate and its atmospherics of light, air, water. Formally and spatially, the house is a direct and pragmatic response to the strict environmental (FEMA and flood elevations) and local zoning restrictions and regulations (height, building setbacks, FAR, footprint) imposed on the building and site (see sectional diagram).
Conceptually, the house is the resultant form and operation of an interface and tension between two systems of geometry, one projective (fixed) and the other, radial (dynamic). Through a overlapping system of spatial and geometric progression, growth, and interference the social-spatial roles of public and private, interior and exterior, house and landscape are intimately connected and entwined, and yet are also left curiously open-ended and indeterminate much like the water itself.” Overall, the house (and its underlying dual geometries) operate precisely and creatively within the found and prescribed social and environmental boundaries of the site to produce a dynamic, experience-oriented dwelling.
The coastal landscape is one of mist, reflection, and indistinctness, sometimes fierce and turbulent, and sometimes, calm and gentle. Things appear to constantly change, fad or drift away. We sought material and formal operations that might mirror and even celebrate this atmospheric ontology of the sea and its operatic arrangements of light, air, and water. We selected cedar wood siding (to respond and innovate upon the cedar-wood shingle and clapboard houses in the surrounding neighborhood), large panel glass window/door systems to promote extraordinary views of Long Island Sound (35′ away), and concrete because if its durability and strength to resist the coastal New England storm surges over time. The contrast between the spiral wood structure, its vertical wood-fin skin, against the concrete plinth and ramp, and the 11′ tall transparent/reflective glass curtain wall system sandwiched between all combine to produce a rich and complex range of shifting perceptual effects that again mirror and re-present the house within the context of the coastal surroundings and atmosphere.
An example of this strategy at the micro-tectonic level, where we blur the perceptual boundary between building and environment, is the vertical cedar batten/louver system designed for the skin of the wood structure of the building. A system of 3/4” x 3-1/2” vertical red-cedar wood fins with stainless steel clips and trim that emerged as a material/tectonic detail and formal/spatial device to unify the disparate parts and elevations of the building but also as a technique to accentuate and amplify the temporal, diaphanous, “moray” effects of sky, water, and building to produce both literal and phenomenological transparency (see photos). It is an extraordinary and constantly changing experience on the site, a spatial-temporal collide-a-scope that has its center in the house itself. Just as the collision of waves creates an interference pattern, one key node within the project interjects a disruption into the flow of the spiral—the interior bridge that links the two different floors heights upstairs. The relationship of the bridge to the interior stairway and exterior courtyard conveys the performative nature of the spiral as a vortex and the interface and tension between two systems of geometry, one projective + linear and the other, radial + dynamic.





















More Similar Articles Like This
Saguaro Palm Springs by Joie de Vivre
Exploring the New World of Luxury Hoteling
Unique Click Clack Hotel In Bogota, Colombia
6 Garden and Lawn Tips to Get Ready for Spring
Amazing Four Seasons Resort Bora Bora
Outstanding Bodrum Houses in Yalikavak, Turkey
The Sophisticated Casa Villa Flamingo in Spain
Astonishing El Tovar by the Sea