Norm Architects renovated this lovely apartment in Copenhagen, Denmark for a couple who travels a lot and needs a nice, cozy home to get back to. With this in mind, the architects chose to go for a minimalist, clean interior and an intelligently placed lighting system that can ensure a perfectly welcoming ambiance.
They created niches all over the apartment, and then hid lights in them, thus reducing the need for space-consuming lamps. Thanks to an iPhone-controllable Home Control System, the lights, the air conditioning and the fireplace can all be easily managed even from outside the dwelling, while on the way home.
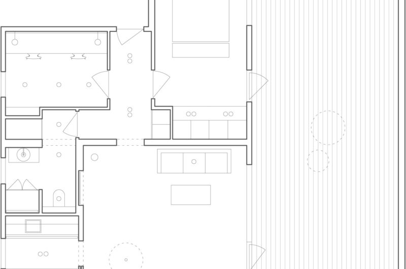
Called Penthouse I, the apartment includes a Japanese-inspired bedroom, a luxe bathroom, an office with enough room for both dwellers to do their work, a hall with clean, simple design lines, a lovely and inviting living area, and a rooftop terrace that is almost the size of the entire apartment. This area too was renovated, receiving wooden floors and a Japanese-inspired garden.

















More Similar Articles Like This
Spectacular Luxury House in Sarasota, Florida by DSDG Inc. Architects
Gorgeous And Spacious Home In Sunset Strip
Seamlessly Apartment by the Beach by ZZ Architects
Plain Geometric Residence Designed by Lidija Dragisic
The Sophisticated Casa Villa Flamingo in Spain
Pure Perfection: Discover the Top White Paint Colors for a Flawless Décor
Lovelli Residence: Mediterranean-Style Dwelling in Bali
Gayton Road Residence by Paxton Locher Studio