Completed for a young couple within an older oceanfront community in East Hampton, New York, Pierson’s Way is a wonderfully designed home that fits right into this historic community while offering contemporary living conditions. It was designed by Bates Masi Architects, it was completed in 2013, and it flaunts 7,405 square feet of living space. It structure is composed of glue-laminated wood beams that are supported by steel columns and girders, which means that conventional wood framing and other traditional structural elements were avoided during the construction process.
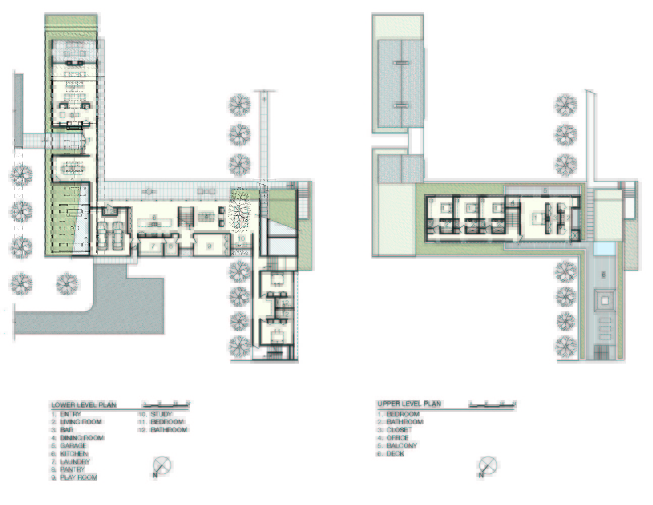
The first floor serves as an entertainment and guest area, while the second one accommodates the family members. The family bedrooms are surrounded by an elevated ground plane that boasts native grasses for a touch of naturalness. Within the plantings, the owners enjoy access to private outdoor areas and facilities such as a fire pit and a spa. A swimming pool flanked by a small relaxation spot and multiple lounging chairs also offers great relaxation and socialization opportunities. Inside, sliding glass doors fade the limits between the interior and exterior spaces, particularly when it comes to the living room, as it enjoys direct access to an outdoor patio.
From the architect:
Located within a private oceanfront community established in the 19th century, this residence is for a young couple looking for a home that would accommodate their growing family and reflect their modern lifestyle. Due to its history, most houses in the neighborhood are more conservative in design and scale than surrounding contemporary oceanfront communities. As a result, the clients desired a modern home that would fit within it’s historic context while embracing the modest scale of the property.
The design meets these goals by referencing the nearby agrarian vernacular buildings, specifically gabled potato barns embedded in the ground. A unique structural system was employed to create a false ground plane that slopes up from grade to the second floor, masking the scale of the house when viewed from the street. The structure consists of 7” thick glue-laminated wood beams supported by steel girders and columns. This structure eliminates the necessity of traditional wood framing and structural elements and was left exposed as the finished ceiling surface throughout the ground level spaces.
The unique structure allows for a number of design opportunities: the material transitions seamlessly from inside to outside as a 12′ by 90′ long cantilever, stairs treads are cut from the same material to express its thickness, and cylindrical recesses are carved out of the wood ceiling to transform surface mounted fixtures into unique lighting elements. This method of carving continues throughout the design as casework and custom furniture. Most notably, the Family Room sofa is fabricated out of the massive glue-laminated wood beams and carved out to create side tables and drink rails.
While the first floor is dedicated to guests and entertaining, the second floor is reserved for the family. The elevated ground plane that surrounds the family bedrooms is planted with native grasses. Within the plantings, intimate outdoor spaces are carved for small gatherings, including a fire pit and spa with views of the ocean. Sloping portions of the elevated ground plane include paths to connect the family areas with the more public entertaining areas on grade.
Materials traditionally used on agricultural buildings are selected for their low maintenance, durability, and ability to gracefully weather over time. Cedar and weathering steel are executed in nontraditional ways. Alaskan yellow shakes monolithically clad the roof and sidewalls. The shake coursing exposure is four times larger than the typical coursing to reduce the apparent scale of the house. The weathering steel references the corrugated steel often used on barn roofs. Weathering steel self seals to create a durable, low maintenance cladding. The warm, earthy tones of these materials blend with the weathered landscape that surrounds it.
Surrounding contemporary oceanfront communities are becoming known for their overdevelopment and disconnect from their surrounding environment. By referencing the local vernacular and elevating the ground plane, this large house is rooted within the landscape and becomes a cohesive addition to the neighborhood.
Architects: Bates Masi Architects
Location: East Hampton, NY, United States
Area: 688.0 sqm
Project Year: 2013
Photographs: Michael Moran
Manufacturers: Arcadia, B-K Lighting, Benjamin Moore, Boffi, Calazzo, Cor-Ten steel, Custom, Delta Light, Edge, Engineered lighting products, Grant, InSinkErator, Kallista, Kohler, Miele, RAB Lighting, Rajack, Rocky Mountain, Stone Source, Sub-Zero Wolf, Tech Lighting, Toto, Valders Stone & Marble, Walker Zanger, Waterworks, Westhampton Glass & Metal, Zuma Collection












More Similar Articles Like This
Behr’s Brilliant Blues: 70 Shades of Stunning Paint Colors
Exceptional Coronado Bay Front Estate in California
Marvelous Anantara Dhigu Resort
Gayton Road Residence by Paxton Locher Studio
Wonderful Yachting Club Villas at Elounda Beach by Davide Macullo Architects
How Seattle Lawn Care Service Deals With Overgrown Lawns
Seamlessly Apartment by the Beach by ZZ Architects
70 Shades of Green: Benjamin Moore’s Vibrant Paint Colors