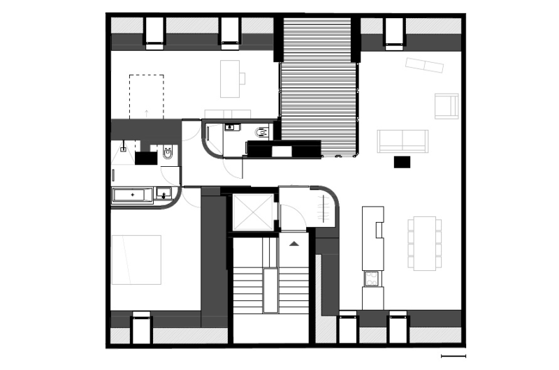
This 394-sq-ft space became the project of n-lab architects. The apartment is situated in Sandweiler, Luxembourg, and it impresses with the glossy interior design with a powerful contrast.
The main element used in the interior are the HPL panels. They were used as furniture elements and doors, but also to create a clean and neat aspect. One even more interesting element made from HPL panels is the folding bed.
The architects gave fluency to the spaces inside the apartment. A short corridor and round-edges created this effect while the all-over use of white connects the interior spaces. The necessary contrast was given by the dark-shaded wood flooring.













More Similar Articles Like This
Boracay Resort & Spa in the Fascinating Philippines
Shadowed Depths: Vintage-inspired Paint Colors for Dark Basements
6 Garden and Lawn Tips to Get Ready for Spring
Vibrant Wood Tones: Explore a Spectrum of Spray Paint Colors!
Exquisite Crossacres Mansion In Surrey, England
Plain Geometric Residence Designed by Lidija Dragisic
The Sophisticated Casa Villa Flamingo in Spain
Best paint colors for the living room