This project by JMY architects was finished in 2014 in Gyeongsangnam-do, South Korea, and it features 2,368 square feet of living space. It was built at the core of a basin surrounded by hills, which is why its views are open only to the southeast, towards a reservoir. Built for a family of three generations, the residence ensures utmost privacy and comfort for all family members. It is divided into a common space, a parents’ space at the first floor and a children’s area that is shared partially with the grandparents.
On the first floor, the residents enjoy access to a pair of outdoor decks, which are complemented by three more outdoor spaces located in other parts of the house. Each outdoor area extends from an interior space, and yet privacy is maintained to the highest degree. The Woljam-ri House is a perfect place to come home to, and it represents a fine example of contemporary architecture and design.
From the architect:
A spectrum between private and public.
This is a country house that internally respects various life styles of three-generation family members as well as their communal life, and that externally encourages communications with neighbors and inverts aggressively disadvantages of the site. The complex boundary between private and public, which is always born in communal life is reinterpreted as multi layers of vertical and horizontal planes in regard to functions and contexts.
Large but diagonal-shaped site, environmental limit.
The site is the center of a basin surrounded by low hills, and it is of a diagonal shape with 628.00㎡. The site is the lowest area within the basin, and neighboring houses are besieging the site along the hill flow. The view is opened only to the east-south toward reservoir. And those have determined the architectural arrangement and openness of the house.
Country house for three generations.
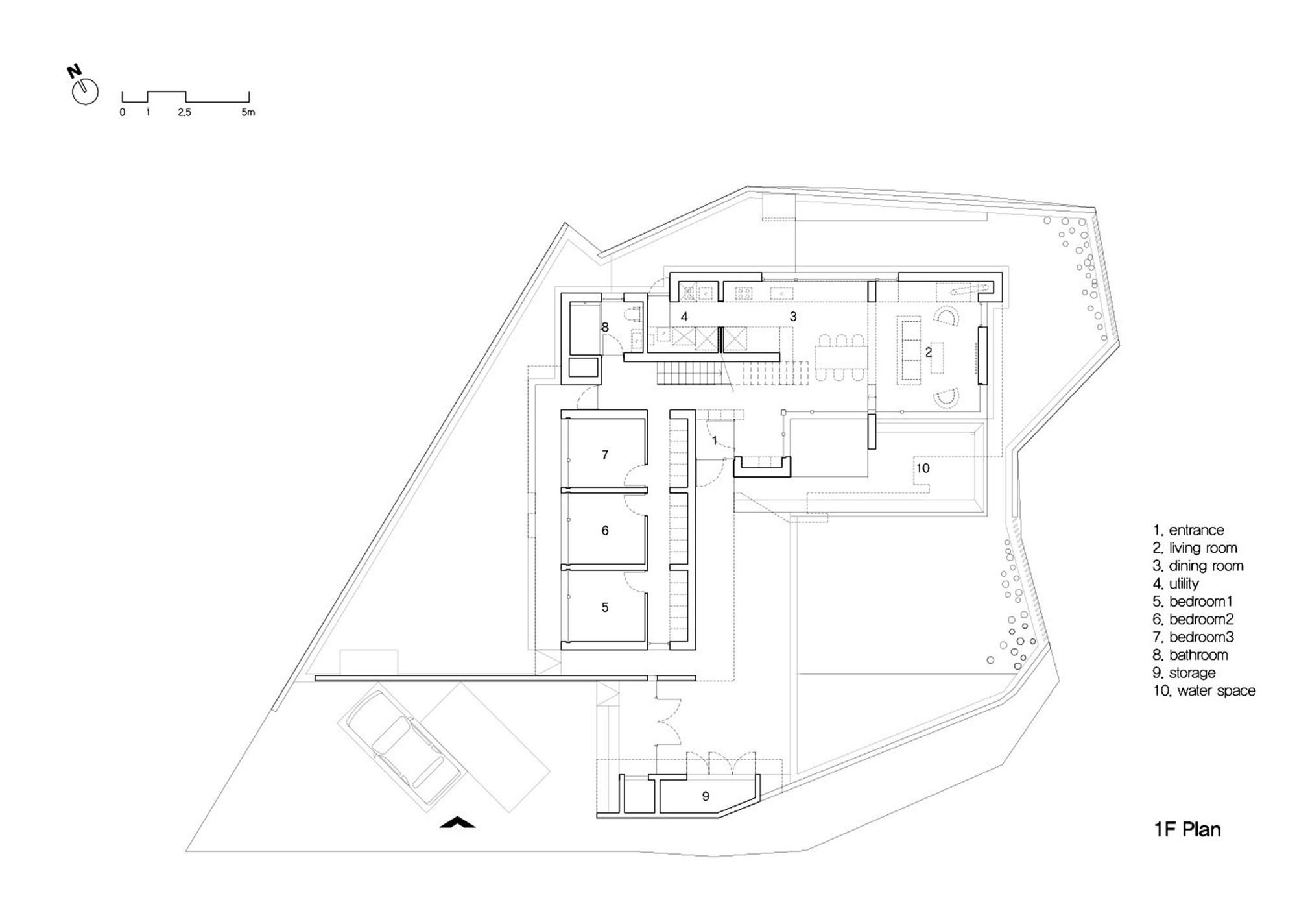
The house basically consists of common space, grand parents’ space, parents’ space(1st floor) while the children’s space is with grand parents’ space.
Abundant outdoor space and space as a buffer zone.
The diagonal shaped site that its shape is defined by the reversed ‘ㄱ’ shaped house, consists of three areas such as access road, courtyard and backyard with a water pond, and the spaces altogether make a circulating spatial narrative. And with the two outdoor decks on the first floor, the number of space ends up becoming five. Each outdoor space is formed as an extension of adjacent interior space, and they come to embrace spatial narratives of public space as a semi-private buffer zone against neighboring spaces and the surrounding nature.
Controlled openness.
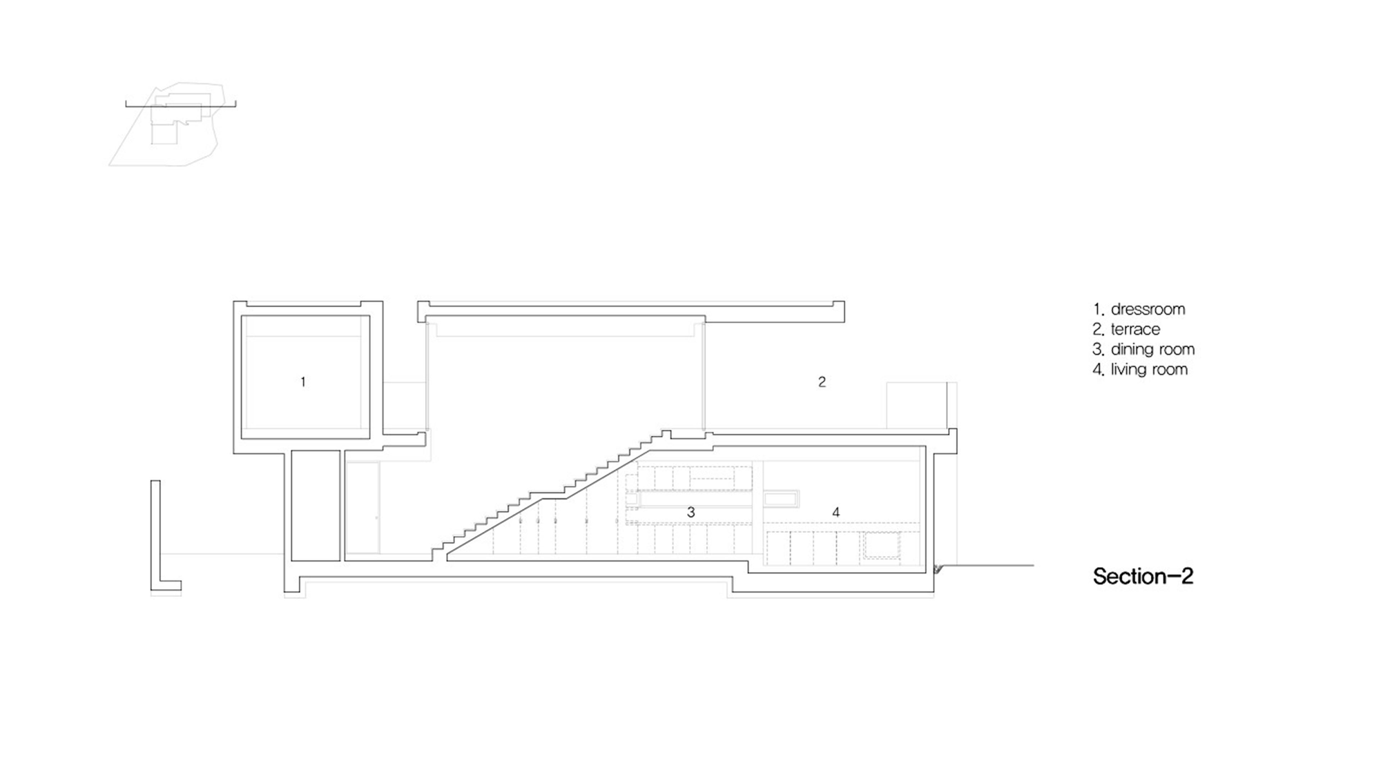
It is achieved the maximum privacy level against neighbors while the openness of space is maintained through contemporary application of the secluded spatial arrangement of Han-ok in regard to geometry, context and program. Living room is opened to the courtyard in the south, the view of the rooms on the 1st floor are designed to face the adjacent lake. The wall fence plan was considered as a part of the architecture, and it was designed, when it is necessary, to block the views from the outside, yet without losing openness.
Location: 453-1 Woljam-ri, Dong-eup, Uichang-gu, Gyeongsangnam-do, South Korea
Architect In Charge: Jaemin Yoon
Design Team: Jinsoo Kim, Hyukhyu Shin(Team Manager) Kwangjae Ryu, Minji Kim, Seongmin Lee
Area: 220.0 sqm
Year: 2014
Photographs: Joonhwan Yoon
Collaborator S: MOA Structure
Collaborator M: HL Consulting Engineers
Collaborator E: Daewon Pobis
Construction: CS Construction
Interior Construction: Site people
Site Area: 628.00㎡












More Similar Articles Like This
Amazing Four Seasons Resort Bora Bora
70 Shades of Green: Benjamin Moore’s Vibrant Paint Colors
6 Garden and Lawn Tips to Get Ready for Spring
Vibrant Wood Tones: Explore a Spectrum of Spray Paint Colors!
Exceptional Coronado Bay Front Estate in California
How Seattle Lawn Care Service Deals With Overgrown Lawns
Santa Barbara Style Home in Paradise Valley, Phoenix
Heavenly Lily Beach Resort & Spa In Huvahendhoo, Maldives