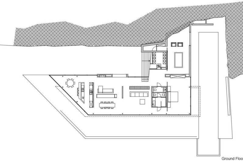
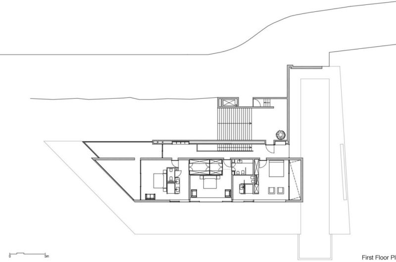
AIBS House is a 4,305 square foot residence by Atelier d’Architecture Bruno Erpicum & Partners (AABE), an architectural firm in Belgium. Located on a steep cliff in Ibiza, Spain, it was completed in 2002 with a perfect orientation so as to take full advantage of the sweeping sea views.
Floor-to-ceiling windows frame the landscape while also allowing natural light to flood the rooms. Another function of the extensive glazing is that of protection against winds. The building does not affect nature in any way, being perched at an altitude of 521 feet. Inviting terraces give a sense of continuity from inside to outside spaces, and the infinity-edge pool seems like a reflection of the vast sea that merges with the horizon.
Photos by Jean-Luc Laloux



















More Similar Articles Like This
Pure Perfection: Discover the Top White Paint Colors for a Flawless Décor
Spectacular Rooftop Apartment by Innocad
Opulent Mandarin Oriental Hotel in Paris
70 Shades of Green: Benjamin Moore’s Vibrant Paint Colors
Heavenly Lily Beach Resort & Spa In Huvahendhoo, Maldives
Extraordinary Constance Halaveli Maldives Resort
Beautiful Apartment in Stockholm for $1 Million
The Superb Villa Verai on Phuket Island, Thailand