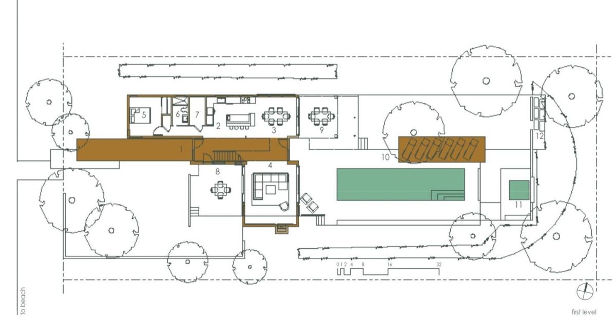
This wonderful summer beach house on Fire Island, New York, was designed by Studio 27 Architecture. While using similar materials to those of the neighboring homes, and inserting details inspired by them, the architects decided to go beyond pragmatism with their project, and give this house a less dull appearance.
The wooden skin of the house will gain a nice patina in time, which will help it better integrate into the environment, making it more similar to the other houses in the area. A remarkable feature of the house is that its luxurious interiors were disposed to follow the path of the sun in synchrony with the occupants’ passing through the house during the day.
Photography by Judy Davis
















More Similar Articles Like This
Behr’s Brilliant Blues: 70 Shades of Stunning Paint Colors
The Superb Villa Verai on Phuket Island, Thailand
Plain Geometric Residence Designed by Lidija Dragisic
Gayton Road Residence by Paxton Locher Studio
Saguaro Palm Springs by Joie de Vivre
Stunning Sustainable Home in Costa Rica by SPG Architects
Exploring the New World of Luxury Hoteling
Vibrant Concrete Floor Paint Colors to Elevate Your Space