The Llorell House is a spacious and luxurious abode that was designed by DOSARQUITECTES and was built in Costa Brava, Girona, Spain in 2015. It flaunts 21,527 square feet of living space and was designed using a series of cube-shaped volumes that were placed on the site in a seemingly random fashion. In truth, even though the cubes appear to have fallen from the sky at random locations, they were actually implemented carefully in regards to the plot’s restrictions. In order to make sure that they would benefit from natural light throughout the day while providing views of the sea, each cube is open completely on one side.
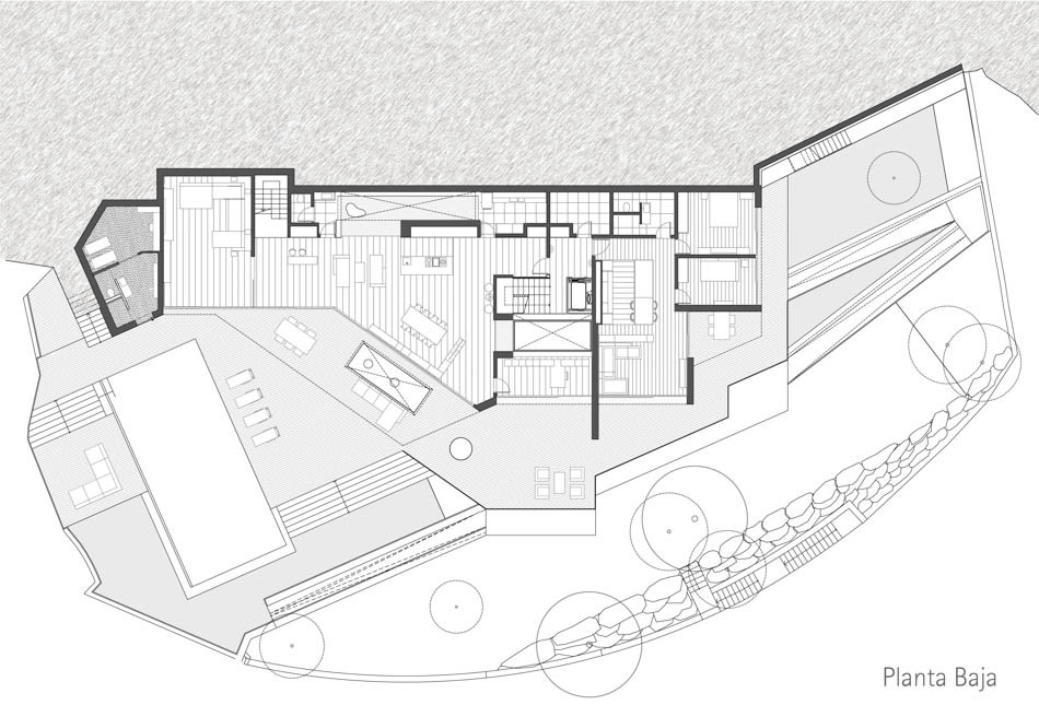
The ground floor of the Llorell House comprises the most important living spaces and benefits from a direct link to the outdoor gardens, swimming pool and terrace. The lower level is in direct contact with a grass garden and accommodates a Hammam, a Spa and a rest area. It also houses a separate apartment for the housekeeper or babysitter.
The facades were created using two main materials, namely travertine stone for the upper volumes and locally sourced stones for the basement and garden walls.
From the architect:
Description A house situated in the heart of the Costa Brava with incredible views to a coast bay.
The challenge was to fit a big program in a volume with some formal contrast with the nature of the place. So we propose some cubes placed as if they were randomly thrown, like if they were fallen from the sky, but finally they really derive from the fan-shape of the plot.
Those cubes have the same size: 7 by 7 meters. They are absolutely open by one side, in order to have the sea views and the best solar orientation, even that they are protected by those very special big blinds (operated by hydraulic system). The situation and position of those cubes project the directives of the rest of the levels of the house.
Under levels have been integrated in the field with a big spaces opening to the sea.
Ground floor that is the main level is situating the most important used pieces in open and direct connection with the outside terraces, swimming-pool and gardens. Three patios help to increase natural lighting and ventilation of this level. Also the serve to distribute the uses of the different spaces: guest apartment, main entrance and study, or the kitchen area and main living room.
Lower level is in contact with the grass garden designed in micro-dunes. Here we can find the Spa and Hammam and a rest area. Separated there is also an apartment for the service of the house (housekeeper, babysitter).
Two main materials have been proposed for the façades:
– Travertine stone of the ventilated façade for the upper volumes, that is giving a noble character to this part of the house
– And the gabions filled with stones of the area, used for the basement of the house and for the walls and protections of the garden.
Another important aspect of the Project is the compliance to accomplish the principles of sustainable architecture, taking energy-saving measures into the design of the house and in the selection of the materials.
Swimming-pool is overflow as an infinity pool and protected by an automatic cover.
Architects: DOSARQUITECTES
Location: 17320 Tossa de Mar, Girona, Spain
Area: 2000.0 sqm
Photographs: Simon Garcia
Structural Design Collaborator: Amanda Colom Calsina
Technical Architect: Lluís Serrat Tarrés
Builder: Rehabilitació i Construcció Salichs S.A.
Installations: SINOPHOS GROUP












More Similar Articles Like This
The Superb Villa Verai on Phuket Island, Thailand
Boracay Resort & Spa in the Fascinating Philippines
Beach House CN – A Superb Contemporary Home in Peru
Stunning Sustainable Home in Costa Rica by SPG Architects
Exceptional Coronado Bay Front Estate in California
Benjamin Moore Exterior Paint: Vibrant Shades for a Striking Home
10 Different Types of Blue Paint Colors
Extraordinary Constance Halaveli Maldives Resort