It is quite difficult to come up with original home designs nowadays, but despite this, numerous innovative and original projects are being envisioned and built on a regular basis. The secret behind this never-ending flow of creativity lies in the skill and dedication of the world’s greatest architects, who spend endless hours making plans and tracing lines for the enjoyment and satisfaction of their customers. The Folding Wall house is a beautifully designed abode that can be found within Ho Chi Minh City in Vietnam.
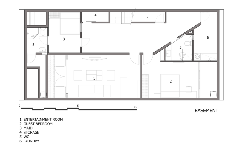
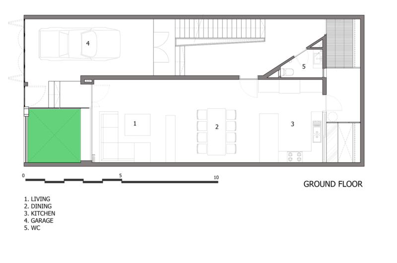
The architects that receive credit for its impressive layout work at a company called NHA DAN ARCHITECT, while the main architect that was in charge of the project is named Nguyen Dinh Gioi. Even though the residence features just 1,119 square feet of living space, its design involves no less than 3 levels, which means that it is definitely spacious enough to house its residents in complete comfort. The complex design of the residence was more of a necessity than an aesthetic choice, especially since the home is flanked on numerous sides by multi-story houses.
The folding wall narrows the circulation space on one side of the residence, which means that more room is allocated for the main living areas and the bedrooms found on the top floors. The interiors of the Folding Wall House impress with high-end amenities, comfortable living conditions and well-lit social spaces. The atmosphere inside is a welcoming, tranquil one that nudges residents and guests towards relaxation and leisure.






















More Similar Articles Like This
Marvelous Anantara Dhigu Resort
Plain Geometric Residence Designed by Lidija Dragisic
A Superb Italianate Mansion in California, USA
Shadowed Depths: Vintage-inspired Paint Colors for Dark Basements
Exploring the New World of Luxury Hoteling
Extraordinary Constance Halaveli Maldives Resort
Vibrant Wood Tones: Explore a Spectrum of Spray Paint Colors!
Unique Click Clack Hotel In Bogota, Colombia