Completed in 2013 following a design by PIQUE, the Filler Residence is located in Bend, Oregon, USA and boasts 4,845 square feet of space. Because it was built on a flat lot, its design includes a single level as well as long rooflines. The most amazing views can be admired on the west side of the lot, which is why the architects placed the main outdoor rooms there. They also implemented deep overhangs that help regulate the flow of sunlight through the transparent façade.
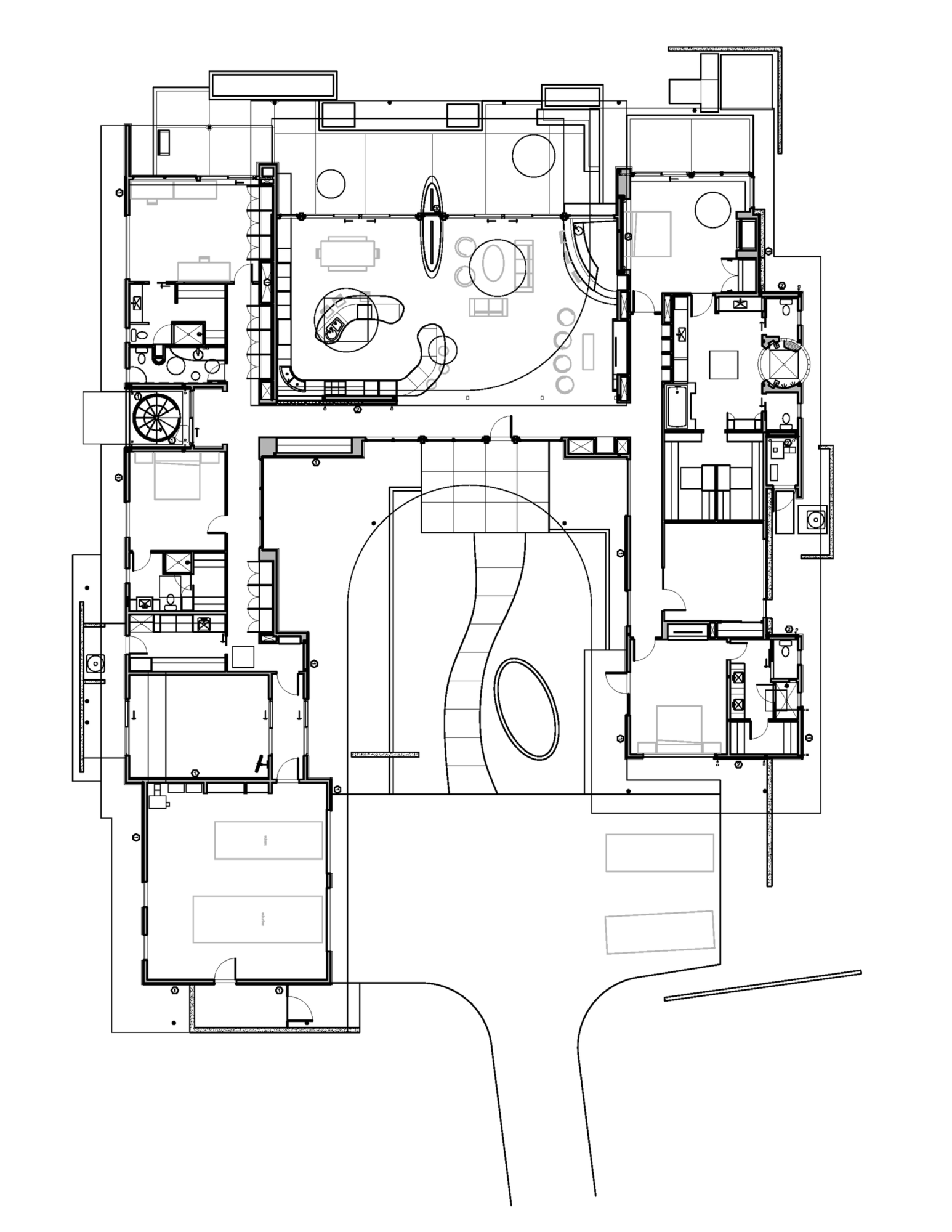
The roof is composed of two sizeable opposing arcs that form the shape of the letter “H.” The horizontal piece that links the “H” is located above the main circulation and defines the primary artery that connects the private wings of the abode. Flanked by a golf course to the west, the Filler Residence flaunts landscape walls and Board formed concrete planters that act as a buffer between the course and a road to the east.
From the architect:
Because the lot is flat, the building is kept to one level and features long rooflines to emphasize the horizontal lines of the landscape.
Deep overhangs on the west side of the site create outdoor rooms to capture western views and look out toward the golf course. With so much glass on the western façade, these overhangs are sized to appropriately manage solar heat gain according to the seasonal demands.
The floating roof plane has two large opposing arcs cut out to form an “H” shape. The connecting piece of the “H” hovers above the primary circulation and defines the thoroughfare between private wings of the house.
Board formed concrete planters and landscape walls act as buffers between the home and the golf course on the west side and between the home and the road on the east as well as help stitch the building form into the flat site. All colors on the building have been kept to a natural brownish tone to echo the colors and textures of the surrounding landscape.
Contractor: High Timber Construction
Area: 4845.0 ft2
Year: 2013
Photographs: Alan Brandt












More Similar Articles Like This
Extraordinary Constance Halaveli Maldives Resort
Beautiful Apartment in Stockholm for $1 Million
Best paint colors for the living room
Different Types Of Foundations For Summer Houses and Garden Buildings
Santa Barbara Style Home in Paradise Valley, Phoenix
Vibrant Concrete Floor Paint Colors to Elevate Your Space
Shadowed Depths: Vintage-inspired Paint Colors for Dark Basements
How Seattle Lawn Care Service Deals With Overgrown Lawns