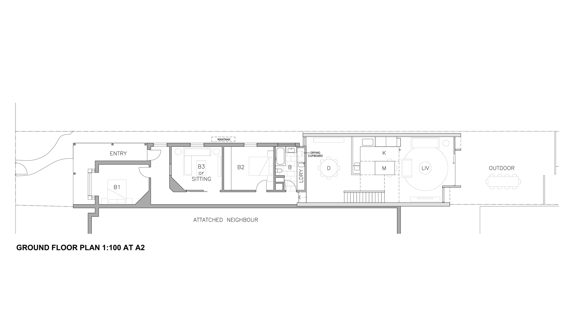
AM Architecture completed the North Fitzroy House in 2012. It is located in Fitzroy, Melbourne, Australia and is a complete functional home for everyday living.
The old is mixed with new here due to the fact that a classic house was transformed into a contemporary and classy location. The old building was extended so many functional spaces were divided such as the dining area from the kitchen, but still maintaining a spatial connection. Because of the large windows, during the day, the space receives a reflected and ambient glow of light.
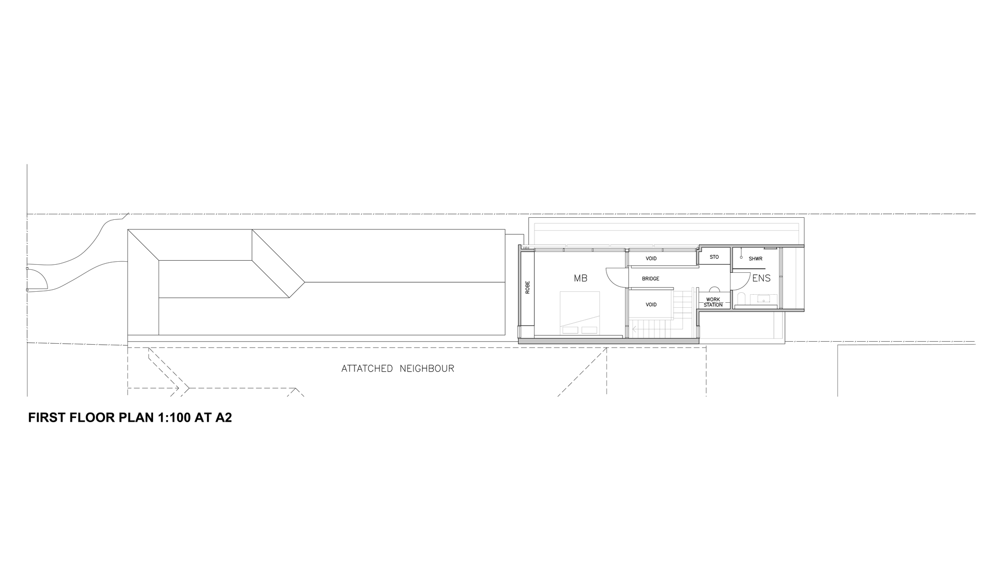
The living area is an open space plan due to its fully glazing to the northern garden while the first floor is all enveloped in privacy, customized with a high pitching ceiling that opens the space up to the sky and the trees.
This is such a wonderful project due to the perfect working relationship between the clients and the architect that was bases upon good communication.
Photo by Dianna Snape















More Similar Articles Like This
Superb Luxury Penthouse in Portomaso, Malta
Behr’s Brilliant Blues: 70 Shades of Stunning Paint Colors
Vibrant Concrete Floor Paint Colors to Elevate Your Space
Amazing Four Seasons Resort Bora Bora
Stunning Banyan Tree Ungasan Bali in Indonesia
Lovelli Residence: Mediterranean-Style Dwelling in Bali
Secluded Naladhu Island in Maldives
The Sophisticated Casa Villa Flamingo in Spain