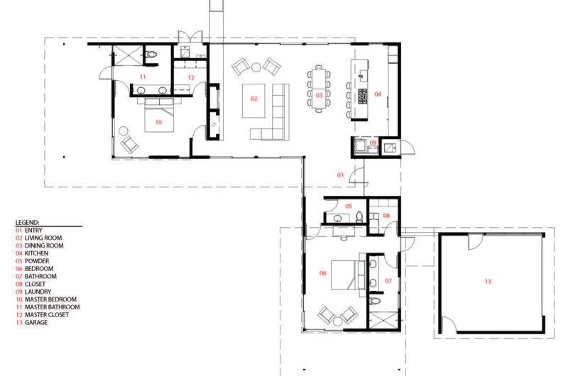
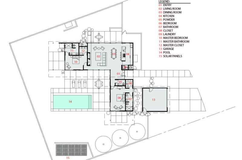
Designed by the experts at o2 Architecture, House in Palm Springs can be found in San Jacinto, California and impresses with 2,100 square feet of lavish living space. Featuring 2 luxurious master suites as well as a generously sized living room and dining room, this magnificent residence is a superb place to come home to and a fine example of sustainable architecture.
Since San Jacinto is well known for its hot summer days, the architects in charge of the construction process implemented a series of passive cooling technologies as well as deep roof extensions that provide much needed shade and comfort. The windows facing the west side of the home are sheltered from the sunrays with the help of a series of rolling shade panels.
Inside, the main living areas were decorated and furnished tastefully and feature a plethora of high-end conveniences throughout, including fireplaces, flat screen TVs and hi-fi audio systems. The swimming pool can be found outside and is flanked by several lounging areas that tempt with memorable moments of comfort and relaxation.
House in Palm Springs is a net-zero abode, which means that it produces more energy than it is actually able to use during a year of occupancy. That’s quite impressive, right?
Photos by Lance Gerber
From the o2 Architecture:
This 2,100 Sq. Ft. home maximizes every inch of living space. Deep roof extensions, soaring outward from the two Master Suites, expand indoor-outdoor living while allowing protection from seasonally intense sunshine.
Maximizing western views of the San Jacinto mountain range, while minimizing the overheating that accompanies expansive west facing windows, drove site planning and architectural details. A system of rolling shade panels protects west windows from the low angle setting sun and provide delight with ever-changing shadow patterns.
After one year of occupancy the home has exceeded the client’s net-zero goals and has produced more electricity than it uses.





















More Similar Articles Like This
Unique Click Clack Hotel In Bogota, Colombia
Astonishing El Tovar by the Sea
Spectacular Luxury House in Sarasota, Florida by DSDG Inc. Architects
Superb Luxury Penthouse in Portomaso, Malta
Exploring the New World of Luxury Hoteling
Gayton Road Residence by Paxton Locher Studio
Exceptional Coronado Bay Front Estate in California
Secluded Naladhu Island in Maldives