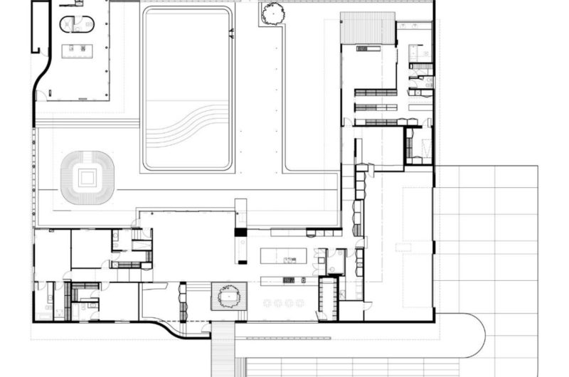
This modern house in Springfield, Missouri, was designed by Hufft Projects. It was planned as a U-shape building with a private courtyard.
The master bedrooms are grouped on one side of the house, while the living and social areas are on the other side. The courtyard includes the pool and it was designed as a place for relaxation. The fire pit is a fantastic addition to this part of the house, since it creates the perfect setting for an evening with friends.
A masonry wall is blended into the exterior design of the house as a signature mark. It delimitates the main entrance and the pool cabana’s western wall. The single-level house impresses by its simple lines and eclectic use of materials. Some of these vibrant elements that enhance the visual effect of the house are grey brick, ipe, Spanish roof tile, and red cedar.
The entire residence is environmentally friendly having a photovoltaic panel on the roof of the cabana, radiant heating through the floors, geothermal water system, and intense use of daylight.




















More Similar Articles Like This
Pure Perfection: Discover the Top White Paint Colors for a Flawless Décor
Gayton Road Residence by Paxton Locher Studio
Benjamin Moore Exterior Paint: Vibrant Shades for a Striking Home
Exquisite Crossacres Mansion In Surrey, England
Behr’s Brilliant Blues: 70 Shades of Stunning Paint Colors
The Sophisticated Casa Villa Flamingo in Spain
Boracay Resort & Spa in the Fascinating Philippines
The Superb Villa Verai on Phuket Island, Thailand