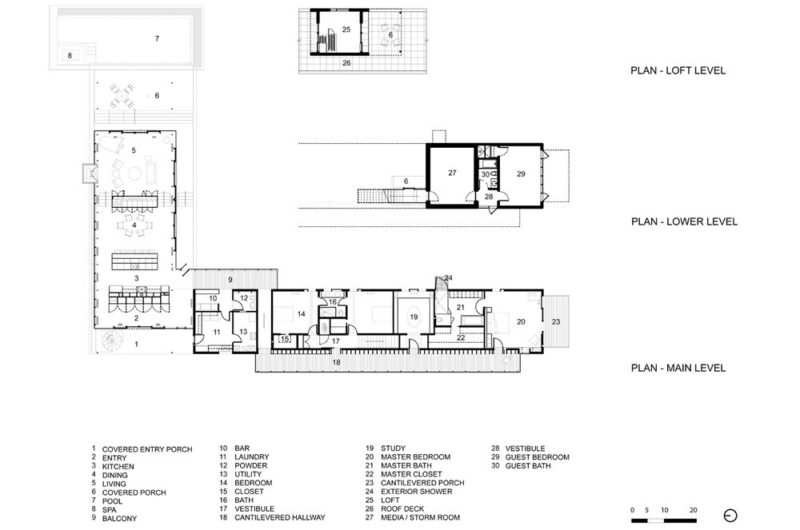
Surrounded by the peaceful landscape and wildlife of Texas Hill Country, stands the Wimberley residence, designed by Cunningham Architects.
The L-shaped plan divides the house into two discrete boxes. One of them, made of glass, includes the kitchen-living-dining area, while the other, made of stained cement fiberboard, features the private area. The expansive roof deck has a double purpose. On one hand it is the perfect place for family and friends gatherings, offering beautiful views of the surroundings, on the other, it harvests the rain water for the on-site collecting system. For this sustainable home the architects used energy efficient local resources, building materials and construction techniques.




























More Similar Articles Like This
Spectacular Luxury House in Sarasota, Florida by DSDG Inc. Architects
Vibrant Concrete Floor Paint Colors to Elevate Your Space
Behr’s Brilliant Blues: 70 Shades of Stunning Paint Colors
Extraordinary Constance Halaveli Maldives Resort
Gorgeous And Spacious Home In Sunset Strip
Opulent Mandarin Oriental Hotel in Paris
Tips for Choosing the Right Blue Paint Color for Your Dining Room
These Top Tips Will Help You to Turn Your Garden into the Ultimate Glamping Site!