The owners of this beautiful home in the Himalayas contacted Rajiv Saini, whom they trusted from previous collaborations, and asked for a nice weekend residence amidst the Himalayan ranges, near the town of Kasauli. They wanted a welcoming place away from their house in Delhi, a haven of relaxation where they could spend a happy time together with their friends.
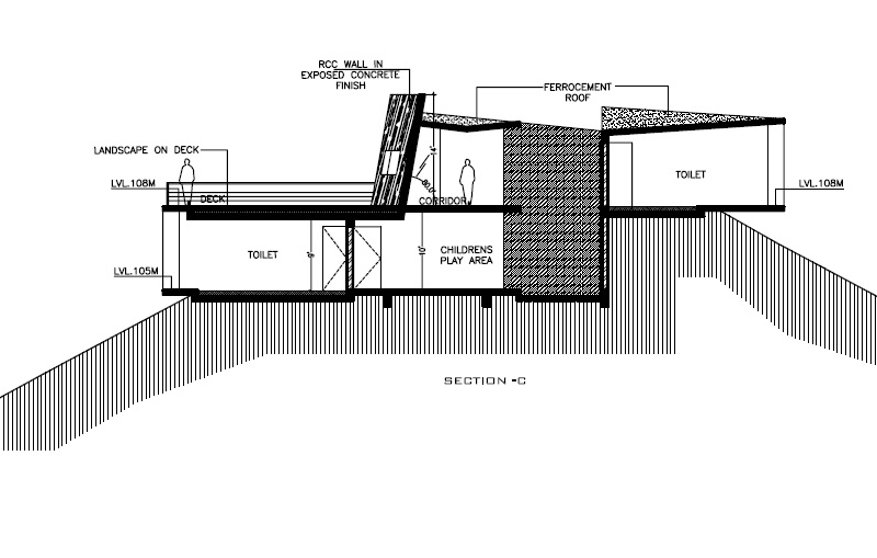
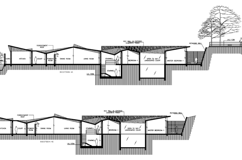
The house was built on a private hill, where the lot was quite narrow and challenging. The architects somehow managed to squeeze an 8,000-square-foot house with 4 bedrooms on the limited available space, without creating crowded and uncomfortable spaces. On the contrary, the interiors are very spacious, airy, and very welcoming. See for yourself in the photos below.
































More Similar Articles Like This
Astonishing El Tovar by the Sea
Behr’s Brilliant Blues: 70 Shades of Stunning Paint Colors
Vibrant Wood Tones: Explore a Spectrum of Spray Paint Colors!
Best paint colors for the living room
Santa Barbara Style Home in Paradise Valley, Phoenix
Gayton Road Residence by Paxton Locher Studio
Different Types Of Foundations For Summer Houses and Garden Buildings
Saguaro Palm Springs by Joie de Vivre