Casa P12 is a masterpiece of architecture and design that can be found within the Cañete province of Lima, Peru. Built in 2012, this modern residence was sketched out by Martín Dulanto Architect and has the potential to amaze at a glance thanks to its exquisite living arrangements and unique design.
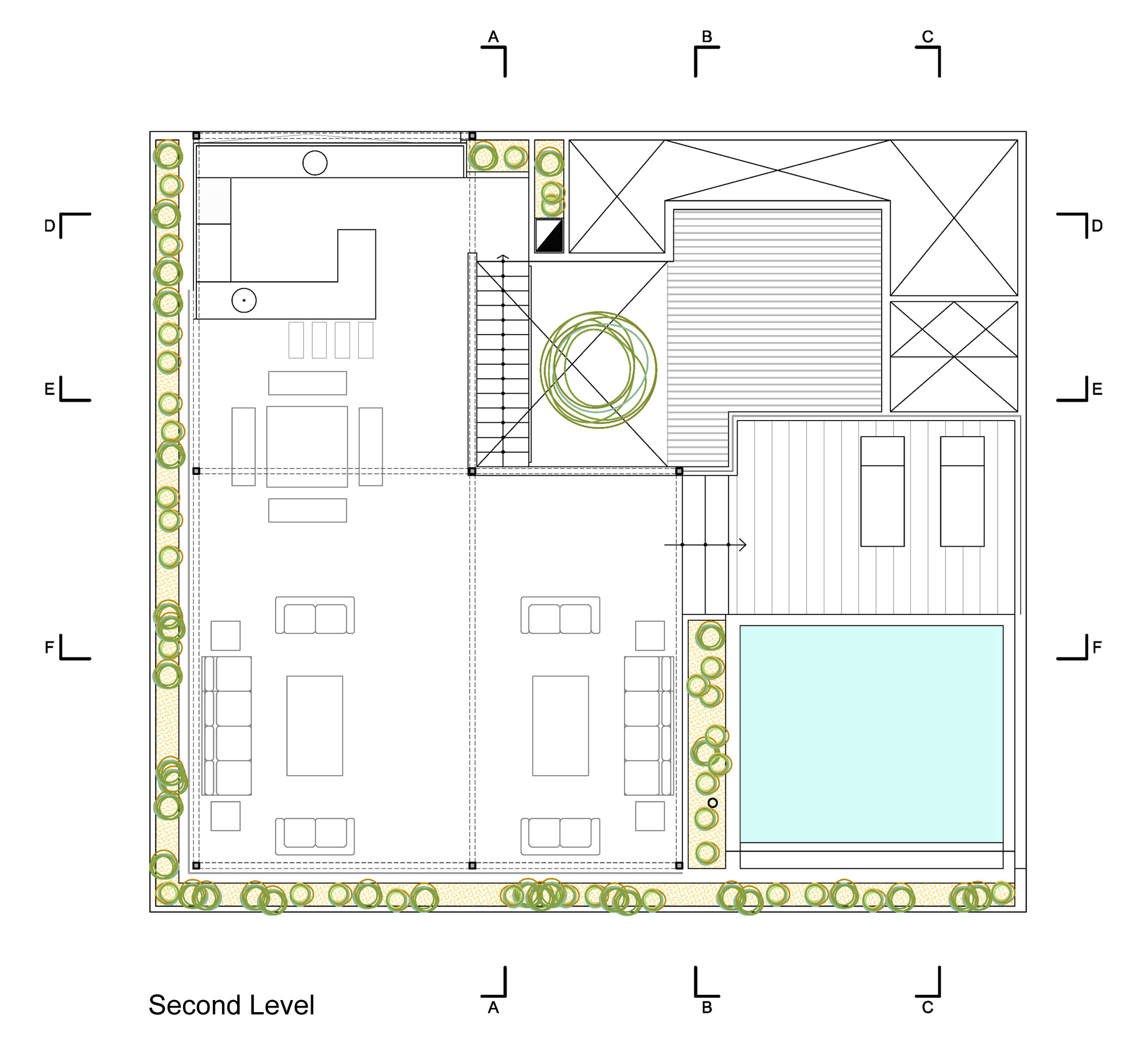
The construction process of this contemporary abode involved the use of multiple wooden, glass and concrete elements that ended up blending seamlessly into a marvelous design. Featuring a total of 3 levels, the residence flaunts a highly efficient separation of its private and social living areas.
As such, the first level includes the master bedroom with its own bathroom and walk in closet, as well as the kitchen, laundry, guest bathroom, main living room and secondary living room. The terrace can be used for barbequing, swimming or dining, but it also features 2 separate rooms that offer plenty of relaxation opportunities. Finally, the basement includes another living room as well as 3 bedrooms, a courtyard, a reflective pool and the servicing areas for the bathrooms and primary rooms.
You can admire this gorgeous residence yourself by browsing through the following images.






























More Similar Articles Like This
Vibrant Concrete Floor Paint Colors to Elevate Your Space
Vibrant Wood Tones: Explore a Spectrum of Spray Paint Colors!
70 Shades of Green: Benjamin Moore’s Vibrant Paint Colors
Heavenly Lily Beach Resort & Spa In Huvahendhoo, Maldives
10 Different Types of Blue Paint Colors
Lovelli Residence: Mediterranean-Style Dwelling in Bali
Unique Click Clack Hotel In Bogota, Colombia
Spectacular Luxury House in Sarasota, Florida by DSDG Inc. Architects