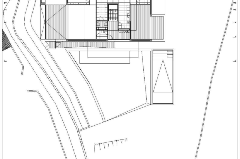
The House in Travanca designed by Nelson Resende and located in Santa Maria da Feira, Portugal was built in an irregular area in a rural village.
The house consists of three levels of which two of them have a visual and physical relationship with the exterior.
The access is made through the middle level both by foot and by car because it has direct connection with the patio and the garage.
The inferior level is a more restricted area that allows a more expansive approach. The upper level provides views of the surroundings and creates a connection between the indoor and the outdoor spaces.
The house creates a tranquil and old atmosphere without being old though.
Photos by FG+SG























More Similar Articles Like This
How Seattle Lawn Care Service Deals With Overgrown Lawns
Benjamin Moore Exterior Paint: Vibrant Shades for a Striking Home
Vibrant Wood Tones: Explore a Spectrum of Spray Paint Colors!
Unique Click Clack Hotel In Bogota, Colombia
Gorgeous And Spacious Home In Sunset Strip
Santa Barbara Style Home in Paradise Valley, Phoenix
The Superb Maradiva Villas Resort & Spa in Mauritius
Exceptional Coronado Bay Front Estate in California