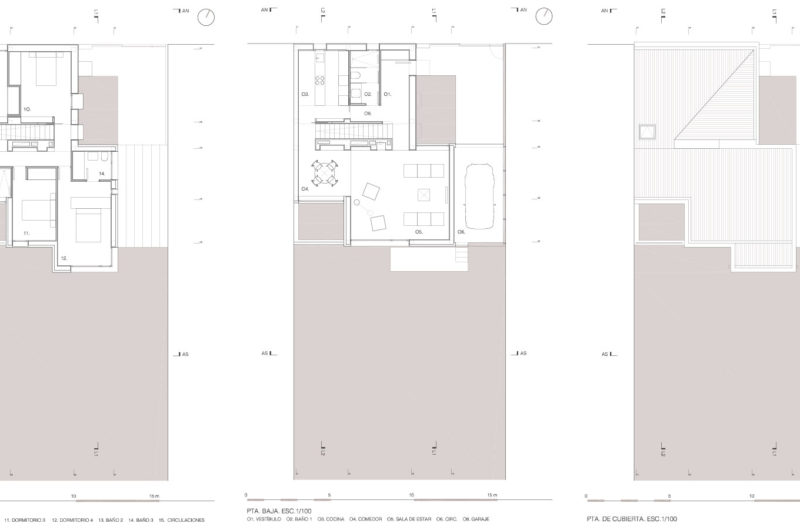
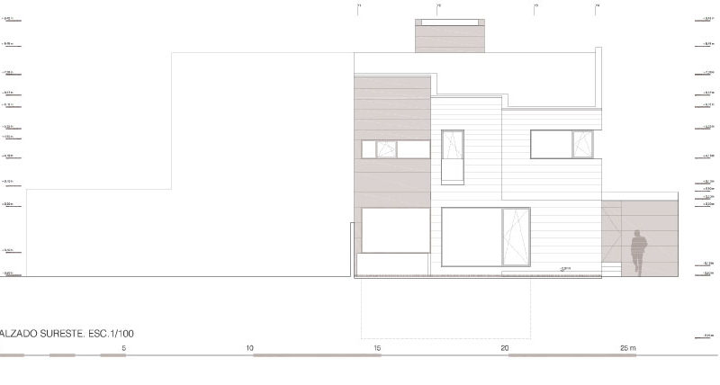
Casa CM28 is a 3,122-square-foot home in Burgos, Spain. It was designed by Spanish architectural firm Gaztelu Jerez Arquitectos, who completed it in 2009. With a minimalist contemporary architecture, this is an excellent dwelling for a modern family.
Classy Casa CM28 in Burgos, Spain by Gaztelu Jerez Arquitectos
Darcie George
I'm Darcie George, a writer who explores home paint. My stories are about making homes look great with colours. Let's learn how to choose paints and create cozy, beautiful spaces together. Join me in discovering the magic of home painting!































More Similar Articles Like This
Exploring the New World of Luxury Hoteling
Seamlessly Apartment by the Beach by ZZ Architects
Contemporary BO House In Envigado, Antioquia, Colombia
Green Gables Home In Fairfield, Connecticut, United States
Dreamy Oceanfront Chateau In West Vancouver, Canada
Stunning Banyan Tree Ungasan Bali in Indonesia
Saguaro Palm Springs by Joie de Vivre
Beautiful Apartment in Stockholm for $1 Million