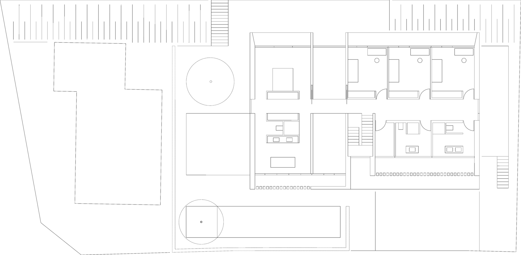
Featuring 4 574 square feet of living, space, House P+G was envisioned and designed by professionals from a company called Architekten Wannenmacher+ Möller GmbH, and it was built in 2012 using high quality and modern materials. As a matter of fact, the residence incorporates an older, smaller home that previously stood on the same lot. This masterpiece of architecture is split into several distinct volumes and boasts 2 stories facing Weinbergstrasse in the northeast and 3 stories towards the garden to the southwest.
The interior flaunts a superb, minimalistic design based on shades of white and beige. The furniture pieces as well as the comfortable seating arrangements follow the same color pattern, while the floor-to-ceiling windows ensure utmost transparency as well as ample flows of natural light within. For privacy purposes, the street-facing façade is closed for the most part, but things are completely reversed at the garden side where the limits between the indoor and outdoor spaces are blurred efficiently.
Photos by Jose Campos

















More Similar Articles Like This
A Superb Italianate Mansion in California, USA
Stunning Sustainable Home in Costa Rica by SPG Architects
Tips for Choosing the Right Blue Paint Color for Your Dining Room
70 Shades of Green: Benjamin Moore’s Vibrant Paint Colors
Secluded Naladhu Island in Maldives
Exquisite Crossacres Mansion In Surrey, England
6 Garden and Lawn Tips to Get Ready for Spring
Extraordinary Constance Halaveli Maldives Resort