Black Desert House is a project of Oller & Pejic Architecture and it looks like an oasis in the middle of the arid desert of California.
The architects started by taking into account the request of the client, who wanted this house to look like a shadow. The explanation is very simple: because in the desert area the sun if often extremely bright, the eye’s only resting place is the shadows.
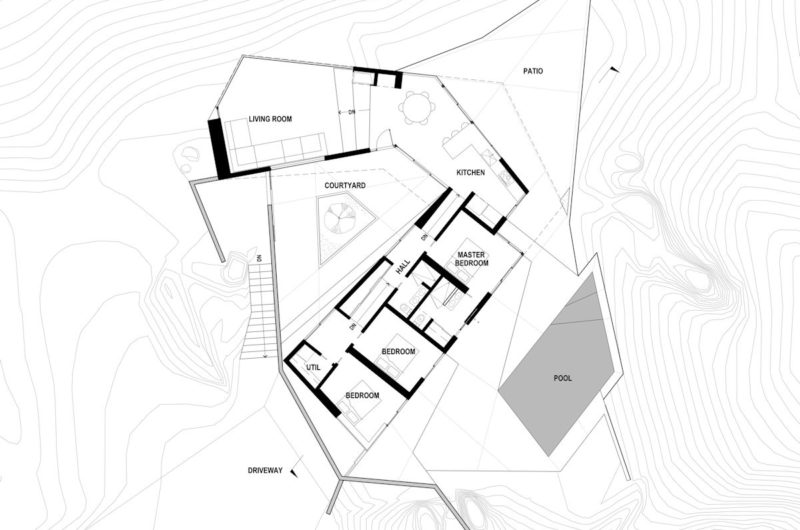
The core of this house is practically the inner courtyard, which is surrounded by the rooms that are arranged in a linear sequence from living room to bedroom with the kitchen and dining room in the center.
The dark color used for the exterior walls, gives the house a cave-like feeling and because of that during the day the views are more pronounced, and during the night the house completely dematerializes.
Photos by Marc Angeles
Cave-Like Black Desert House by Oller & Pejic Architecture






























More Similar Articles Like This
The JKC1 House in Bukit Timah, Singapore
Amazing Four Seasons Resort Bora Bora
Gayton Road Residence by Paxton Locher Studio
Boracay Resort & Spa in the Fascinating Philippines
Pure Perfection: Discover the Top White Paint Colors for a Flawless Décor
Spectacular Rooftop Apartment by Innocad
The Superb Villa Verai on Phuket Island, Thailand
Spectacular Luxury House in Sarasota, Florida by DSDG Inc. Architects