The De Wet 24 House located on Bantry Bay, South Africa was designed by Stefan Antoni Olmesdahl Truen Architects (SAOTA) in collaboration with OKHA Interiors.
It is situated on a steep slope overlooking Bantry Bay and is composed of a dynamic play of volumes within a restricted rectangular envelope.
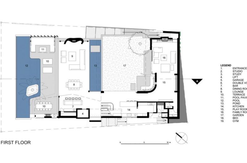
There’s a strong connection between the indoor and the outdoor spaces due to the maximization of the site footprint by the living level.
Interiors: OKHA Interiors

















More Similar Articles Like This
Opulent Mandarin Oriental Hotel in Paris
Gayton Road Residence by Paxton Locher Studio
These Top Tips Will Help You to Turn Your Garden into the Ultimate Glamping Site!
Best paint colors for the living room
Loving Luxury at Mardan Palace Resort, Turkey
Beautiful Apartment in Stockholm for $1 Million
Benjamin Moore Exterior Paint: Vibrant Shades for a Striking Home
The JKC1 House in Bukit Timah, Singapore