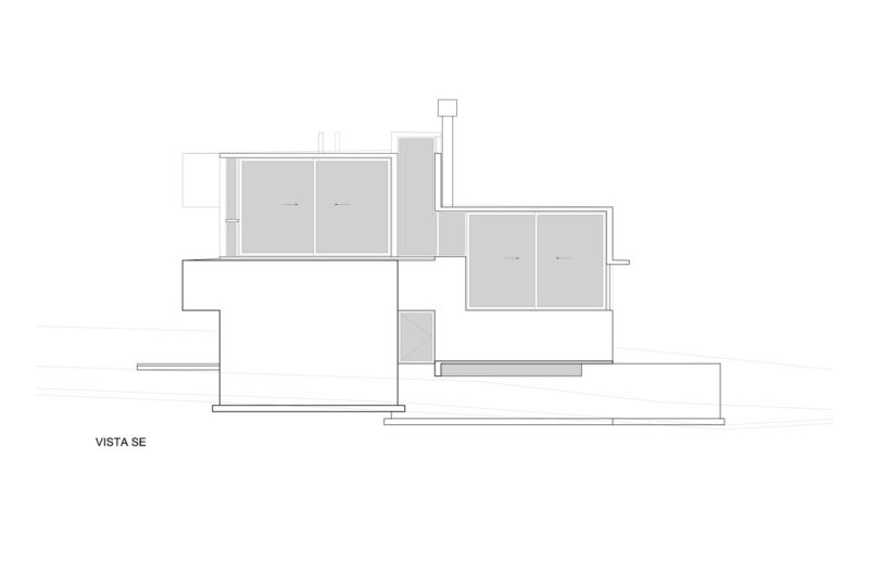
The Levels House was completed in 2011 by BAK Architects. Located in Argentina, this exquisite estate is protected by large acacias and can be used almost all year long by a single-family. The highest accent was on the space because a big family always needs a large social area, a spacious master bedroom and also big bedrooms.
This is a quite comfortable and calm place due to the distance till the street agitation and is perfect for a summer vacation when is the time for relaxation and recovering all the strengths.
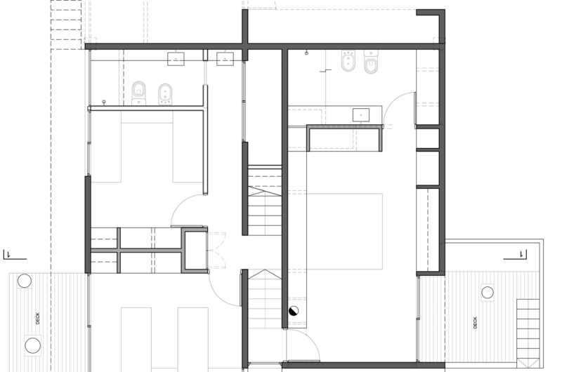
The house was split into four sectors connected by a single ladder which is kind of a functional and spatial organizer and also acts as a link between spaces that need integration.





























More Similar Articles Like This
Unique Click Clack Hotel In Bogota, Colombia
Gayton Road Residence by Paxton Locher Studio
Amazing Four Seasons Resort Bora Bora
The Superb Villa Verai on Phuket Island, Thailand
Exquisite Crossacres Mansion In Surrey, England
Shadowed Depths: Vintage-inspired Paint Colors for Dark Basements
Superb Luxury Penthouse in Portomaso, Malta
Beautiful Apartment in Stockholm for $1 Million