The Beaumaris White House was completed in 2014 in Beaumaris, Australia, and it was sketched out by a firm named In2. It was built for a young family that wanted a place where they could grow into and live comfortably for many years to come. Put together using new building techniques and modern materials, this low-maintenance abode flaunts a seamless transition between its indoor and outdoor spaces and comprises a multiple car garage as well as a “man cave”.
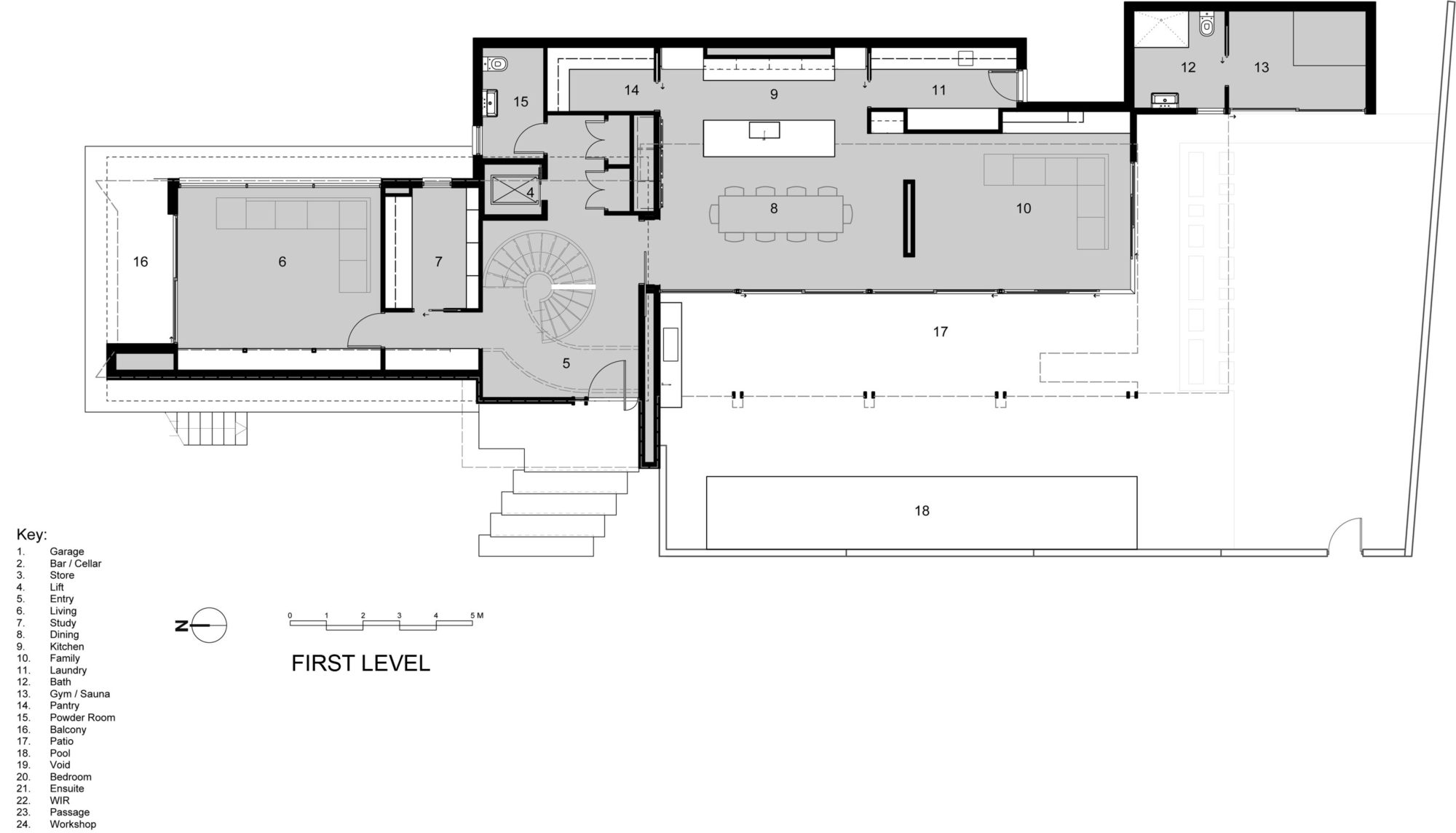
The central atrium boasts a sculptural sinuous stair and a walk bridge, both of which immediately draw the eye. Moving on to the kitchen, we find Nero Marquina benchtops as well as stone and timber veneer elements complemented by high gloss metallic finishes. There is also a large butler style pantry nearby that provides extra workspace and storage facilities.
One of the most luxurious areas in the house is the master suite, which benefits from access to its own resort-style bathroom. As far as the children’s bedroom is concerned, it features a timeless design that can also remain functional as the years go by.
From the architect:
The brief from the clients was to create a functional home for a young family, which they could grow into. There was a strong focus on a “hard edge” design with a timeless aesthetic. A low maintenance building taking advantage of new building technologies, techniques and materials was essential. There needed to be a seamless interaction between indoor and outdoor spaces with a strong interface to the pool. Views from the master bedroom and living room to the parklands opposite the site were highly desired. Multiple car garage with a ‘Man Cave’ was also essential.
The site is located in the south eastern suburb of Beaumaris, one street back from Beach Road, therefore any materials selected would need to endure the coastal air. The site itself is a typical suburban 697 sq.m. (7,502 sq.ft) corner allotment. The predominant street frontage is orientated to the west. The surrounding streetscape features eclectic styles of architecture. There is a diagonal fall across the site of 1.7m (5.56ft), which needed to be considered. Bayside City Council’s residential schedules also meant that setbacks would need to be significantly increased from Rescode standards. Parklands directly opposite provide an unobstructed view.
The design succeeds in creating a very functional family home, in perfect harmony with the clients lifestyle. Innovative design and building solutions bring both functionality and aesthetics to the building and interiors. A basement utilises the natural fall of the land, which afforded the upper levels maximum view of the parklands. Pedestrian access was brought in from the side street directly into the centre of the building, providing fluid movement to all living zones. What has been created is truly honest and sophisticated building. Above all this is a home which the clients are comfortable in and proud to share.
A holistic approach was needed to ensure that all of the internal spaces functioned for their intended use and reflected the bold and minimalist design aesthetic of the building.
The restrained and sophisticated palette has been offset by an abundance of natural light. Subtle textures play as meaningful a role as the selected colours. Each of the rooms finishes have been designed to a very controlled aesthetic. Particular attention was given to key features, and all other elements were purposefully selected and placed to ensure that the space is not confused by competing objects. Each zone has been carefully considered with minor variations on selected materials giving each room a unique feel, while maintaining a congruent theme. New materials were selected for their enduring properties and uniformity. The chosen materials have a timeless aesthetic appeal while providing for the demands of a young family.
The sculptural sinuous stair and walk bridge takes centre stage in the central atrium, and sets a clear tone for all of the interior spaces. This dramatic staircase flows effortlessly from the entry to the upper floor bedrooms.
The kitchen was to be a very important element to this design both functionally and visually. The striking Nero Marquina benchtops and splashback were hand selected to become the hero of the space. The stone’s heavily patterned surface was a deliberate contrast to the sharp and clean lines of the rooms. The stone marries perfectly with the selected timber veneer, and is framed effortlessly with the ultra high gloss metallic finish of the abutting joinery. To ensure that the stone splashback made the strongest possible statement, it was maximized in size and book matched. A pop-up rangehood would ensure direct extraction to the cook top as well as providing added protection to the stone splashback.
The bespoke joinery has been meticulously detailed to a level normally associated with fine furniture. Mitred drawer fronts and recessed finger pulls wrap seamlessly around the entire island bench. The full height metallic cupboards have been set flush with the matching overheads, further pronouncing the stone and timber bench which mirrors the detailing of the island.
The large butler style pantry also provides additional work and storage space which is also easily concealed. The pantry mirrors the detailing of the kitchen itself, providing a seamless interface between the two work areas.
The bathrooms all follow the same careful selection of timeless materials and fittings, however what has been created are four very unique bathroom zones.
The Master Ensuite offers a very sophisticated and sleek resort suite style of bathroom, which opens generously to the bedroom, creating more of a retreat than merely a functional bathroom. The proportions are opulent, while the tone of the room remains intimate.
The Kids Bathroom palette is clean and bright, in a timeless style that can be enjoyed well into later years. The basin, toilet and bathing zones have been separated to ensure that the bathroom is not limited by a single occupant. The expansive skylight located directly above the vanity, floods the central basin space with natural light.
The bathrooms all follow the same careful selection of timeless materials and fittings, however what has been created are four very unique bathroom zones.
The Master Ensuite offers a very sophisticated and sleek resort suite style of bathroom, which opens generously to the bedroom, creating more of a retreat than merely a functional bathroom. The proportions are opulent, while the tone of the room remains intimate.
The Kids Bathroom palette is clean and bright, in a timeless style that can be enjoyed well into later years. The basin, toilet and bathing zones have been separated to ensure that the bathroom is not limited by a single occupant. The expansive skylight located directly above the vanity, floods the central basin space with natural light.
The powder room offers the same rich palette as the Ensuite. The addition of polished listello strips provide further sophistication to the fabric textured wall tiles.
Following through on the theme of the adjoining timber sauna, the Pool House Bathroom has a warmer Scandinavian feel.
The powder room offers the same rich palette as the Ensuite. The addition of polished listello strips provide further sophistication to the fabric textured wall tiles.
Following through on the theme of the adjoining timber sauna, the Pool House Bathroom has a warmer Scandinavian feel.




















More Similar Articles Like This
Astonishing El Tovar by the Sea
5 Ways to Turn Your Yard Into a Fancy Space
Outstanding Bodrum Houses in Yalikavak, Turkey
These Top Tips Will Help You to Turn Your Garden into the Ultimate Glamping Site!
70 Shades of Green: Benjamin Moore’s Vibrant Paint Colors
A Superb Italianate Mansion in California, USA
Spectacular Luxury House in Sarasota, Florida by DSDG Inc. Architects
Loving Luxury at Mardan Palace Resort, Turkey