Sustainable, spacious and luxurious, Ash + Ash is a stunning home located in Portland, USA. It features 3,023 square feet of living space and was finished in 2014 by Hennebery Eddy Architects with comfort and convenience in mind. The house offers gorgeous views of its surroundings from almost every room, and it boasts multiple glass elements such as sliding doors and generous windows that fade the boundaries between the indoors and outdoors.
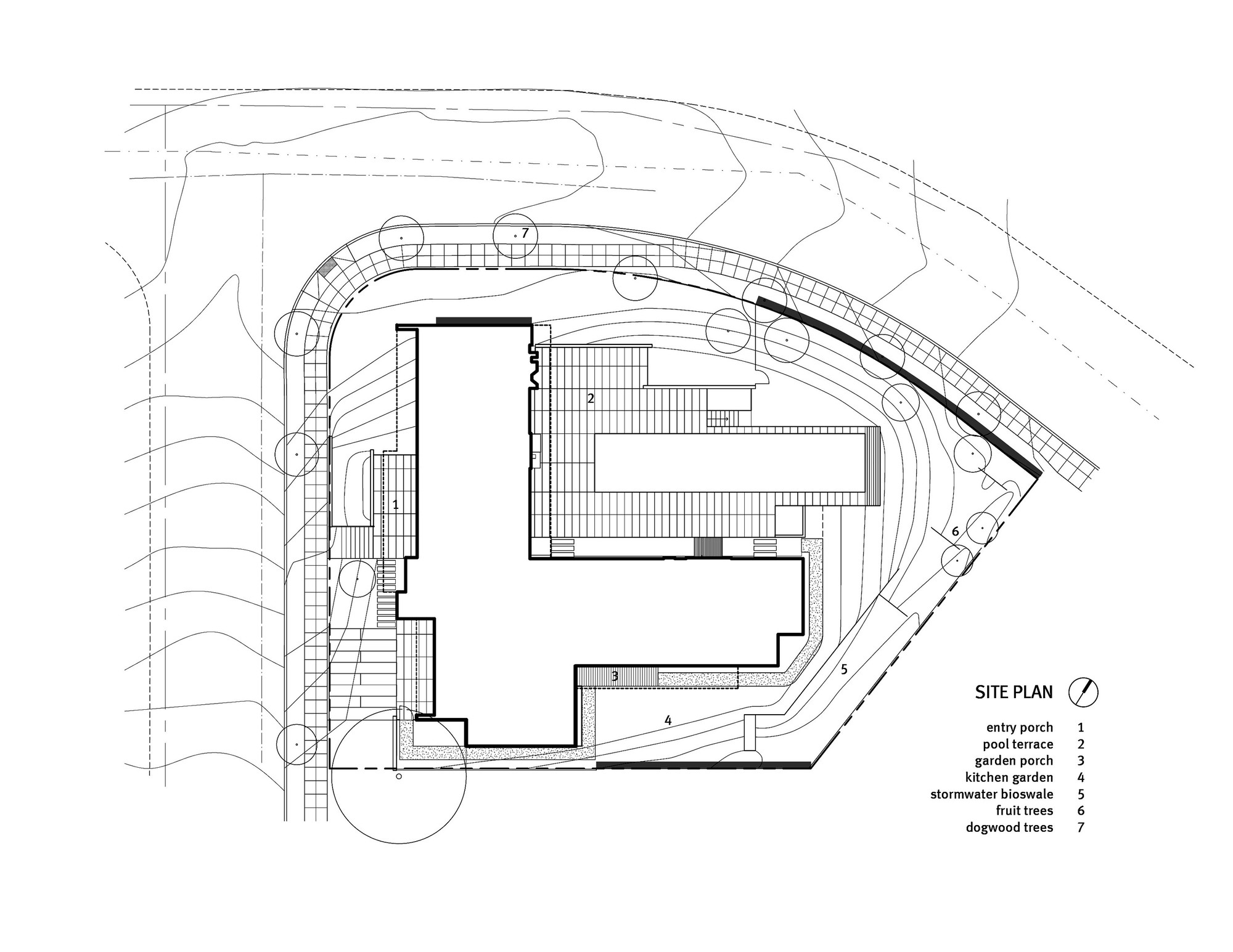
The building features an L-shaped layout that helps separate the social areas from the private spaces. It also ensures privacy for the pool terrace and allows a separate guest wing to distinguish itself from the master bedroom area. The home’s outer shell is made out of white stucco planes complemented by glass and cedar infill panels that sit on top of an ironspot brick base. The center of the living wing is enveloped in rift cut white oak and flaunts a cantilevered walnut staircase that leads the way to the rooftop.
As far as sustainability is concerned, Ash + Ash includes plenty of highlights, including a geo-exchange heat pump, triple glazing, under-floor radiant heating, exterior blinds, a rainwater recovery system, LED lighting, a solar heater for the pool water and a photovoltaic array that’s good for 10 KW. All of these systems allowed the residence to earn a LEED for Homes Platinum certification.
From the architect:
Ash+Ash integrates contemporary architecture with high performance sustainable design on an infill site on the northwest flank of Mount Tabor in Southeast Portland.
The residence takes advantage of regional and distant views to the east, north, and west, and a close relationship to its neighborhood and immediate landscape. The parti stems from a desire to create a range of terraces and porches for use at different times of the day and in different weather.
Blurring the line between those spaces and the interior through extensive transparency is central to the design concept. The simple L-shaped plan places main living and gathering spaces in a separate wing from guest and master bedroom spaces and encloses a visually private pool terrace.
The building skin is composed of white stucco planes with large glass and cedar infill panels floating above a dark ironspot brick base. The volume of the pool, low retaining walls and other site elements cut through the sloping site exposing raw steel panels that meet grade. Deep cedar soffits at the home’s porches protect expansive glazing from the sun and extend to the interior above the glass forming rich spaces and a purposefully more intimate scale in guest bedrooms, the master bath, and viewbox.
The central core of the living wing is wrapped in rift cut white oak and complemented by a cantilevered walnut stair to the rooftop viewbox and terrace. Interior walls and lighting are proportioned to display artwork. White marble counters and hearth reflect the planar forms of the building’s stucco wrapper.
Simple white marble surfaces in the guest and master baths and soft grey marble in the powder room establish clean backgrounds for playful glass tile on the back wall of each shower. Joint patterns and proportions of stone tile, exterior paving, window, and brick modules are carefully related to one another throughout.
Certified LEED for Homes Platinum, the project incorporates a geo-exchange heat pump, under-floor radiant heating, triple glazing, LED lighting, exterior blinds to control heat gain, rainwater recovery providing potable water, a 10 KW photovoltaic array, solar pool heat, and an awesome storm water swale.
Architects: Hennebery Eddy Architects
Location: 6620 Southeast Ash Court, Portland, OR 97215, USA
Architect in Charge: Timothy R. Eddy, AIA
Area: 3023.0 ft2
Project Year: 2014
Photographs: Josh Partee
Project Team: Joe Broders AIA, LEED GA; Sarah Eddy, LEED GA; Emily Greene, AIA; Dan Petrescu, AIA, LEED GA
Structural/Civil Engineer: KPFF Consulting Engineers
MEP/FP Engineer: Interface Engineering
Landscape Architect: Mayer/Reed
Lighting Designer: Cascade Lighting, Luma Lighting Design
Interior Designer: Hennebery Eddy Architects
Contractor: Brocker Construction Company
Energy Consultants: Earth Advantage, Brightworks












More Similar Articles Like This
Opulent Mandarin Oriental Hotel in Paris
Santa Barbara Style Home in Paradise Valley, Phoenix
Unique Click Clack Hotel In Bogota, Colombia
Green Gables Home In Fairfield, Connecticut, United States
10 Different Types of Blue Paint Colors
Stunning Sustainable Home in Costa Rica by SPG Architects
Astonishing El Tovar by the Sea
Amazing Four Seasons Resort Bora Bora