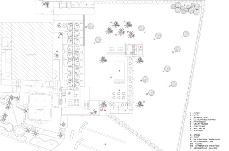
Beautifully combining old and new architectural styles, the Villa Carlotta Hotel is a stunning project by Architrend Architecture. Built over a historical building that dates back to the 1800s, the hotel is located in Ragusa, Sicily, Italy.
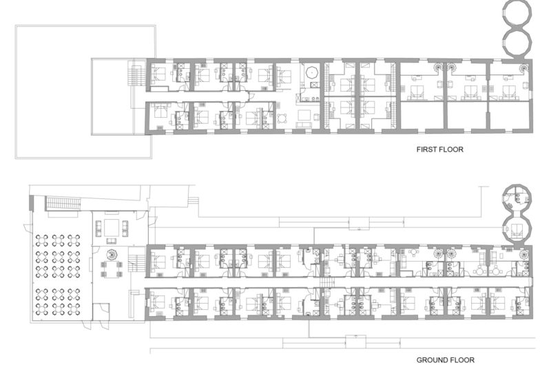
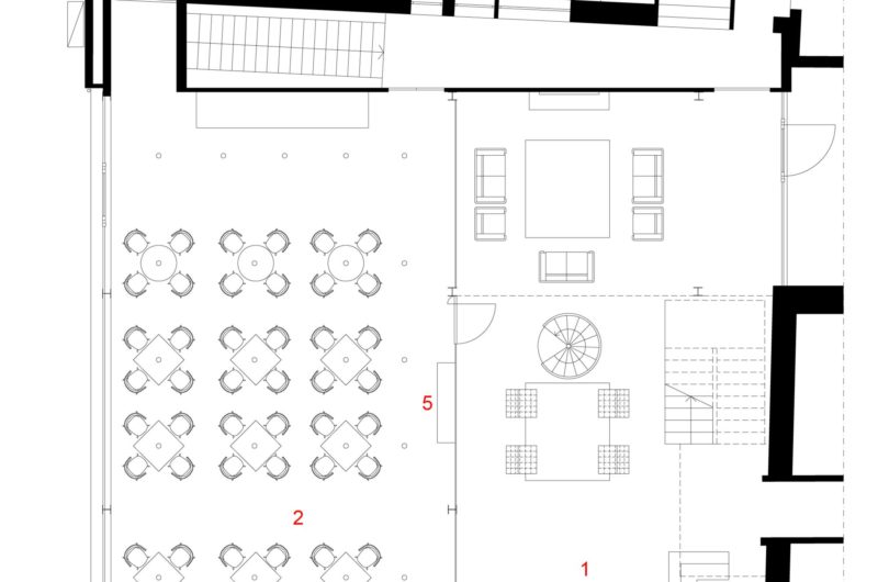
The height of the original rooms permitted a new distribution of spaces, on two levels. The ground floor is where the reception is located, together with the restaurant, seven Junior suites, eleven rooms, and a staircase that leads to the upper floor. One more suite and six rooms can be found on the second level, plus a mezzanine hall.





















More Similar Articles Like This
Tips for Choosing the Right Blue Paint Color for Your Dining Room
Marvelous Anantara Dhigu Resort
Pure Perfection: Discover the Top White Paint Colors for a Flawless Décor
Plain Geometric Residence Designed by Lidija Dragisic
The Superb Villa Verai on Phuket Island, Thailand
Shadowed Depths: Vintage-inspired Paint Colors for Dark Basements
Opulent Mandarin Oriental Hotel in Paris
Vibrant Concrete Floor Paint Colors to Elevate Your Space