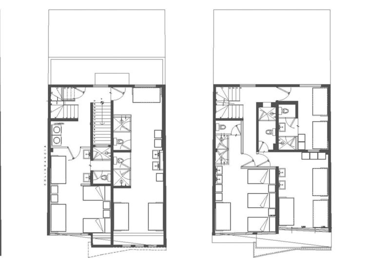
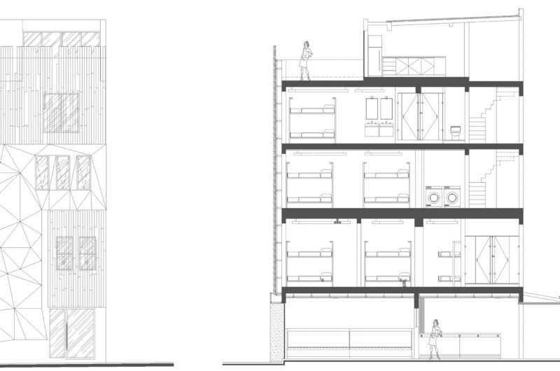
The Hostal La Buena Vista designed by ARCO Arquitectura Contemporánea is a formal residential development from the early years of the XX century in Mexico City that was revived by the investors due to the recent economic growth of the area.
The architecture team accessorized the new building with a double skin on the façade in order to reduce the street noise and to control the temperature inside. The colors and the textures used make the hostel an eye catcher.
The attractive geometric shapes on the façade that evoke the Mexican style are complemented with the warmth of the Ipe wood lattice.
The color seems to be the key element, color accents both in walls and furniture being mixed with grand murals with patterns and skull shapes that reveal and maintain the Mexican traditions.




















More Similar Articles Like This
Spectacular Luxury House in Sarasota, Florida by DSDG Inc. Architects
Vibrant Concrete Floor Paint Colors to Elevate Your Space
Saguaro Palm Springs by Joie de Vivre
Opulent Mandarin Oriental Hotel in Paris
Boracay Resort & Spa in the Fascinating Philippines
Beautiful Apartment in Stockholm for $1 Million
Pure Perfection: Discover the Top White Paint Colors for a Flawless Décor
These Top Tips Will Help You to Turn Your Garden into the Ultimate Glamping Site!