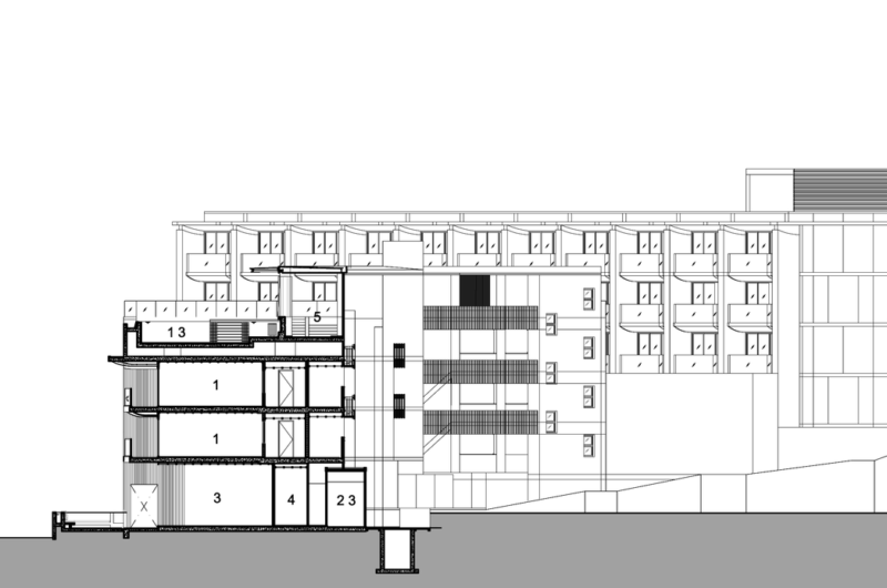
Foundry of Space architects completed the KC Grande Resort & Spa-Hillside in 2013. This beautiful location was constructed because of the growing tourism in the East coast of Thailand. It is located in the Koh Chang Island, Trad, in Thailand, which is one of the most popular places among European holidaymakers.
The building is split into two parts in two different levels to mold the topography. On the first floor of the upper and the lower building, all guests have direct access to the pools and are offered clear views towards the sea.
A 40-m long infinity-edge pool is located on the rooftop of the lower building, overlooking towards Had SaiKhao Beach.





















More Similar Articles Like This
Stunning Sustainable Home in Costa Rica by SPG Architects
Vibrant Wood Tones: Explore a Spectrum of Spray Paint Colors!
5 Ways to Turn Your Yard Into a Fancy Space
These Top Tips Will Help You to Turn Your Garden into the Ultimate Glamping Site!
How Seattle Lawn Care Service Deals With Overgrown Lawns
6 Garden and Lawn Tips to Get Ready for Spring
Saguaro Palm Springs by Joie de Vivre
Shadowed Depths: Vintage-inspired Paint Colors for Dark Basements