IZB Residence is a modern and luxurious hotel that was constructed in Planegg, Germany in 2014. It offers 21,527 square feet of space and is located in proximity to the Innovation Center for Biotechnology. Its exterior design impresses with organic shapes and with a façade that’s covered by white aluminum panels. Solar control glass and decentralized air conditioning made the implementation of solar blinds obsolete, which means that the hotel’s glass elements are always visible.
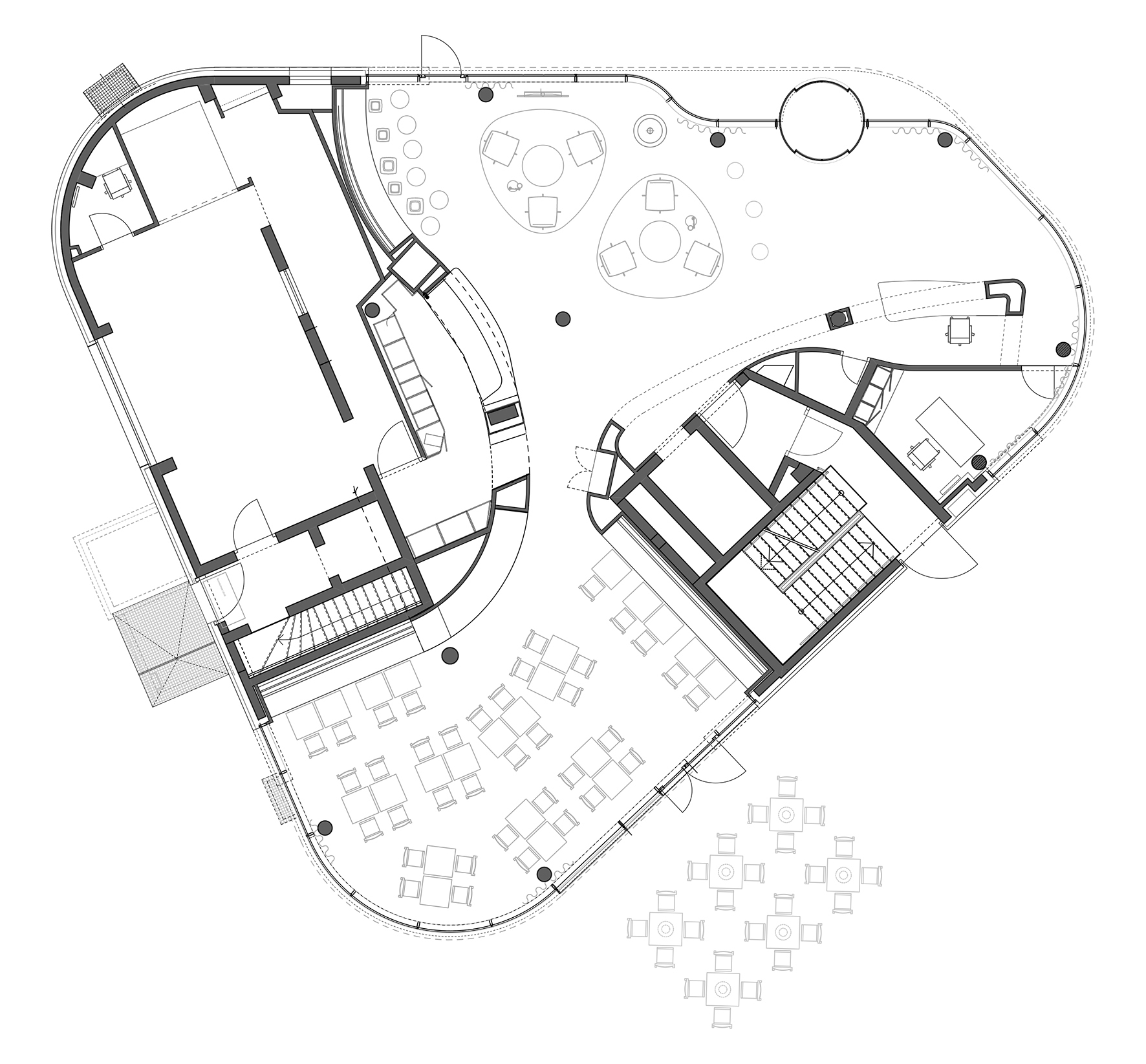
Inside, the organic shape of the façade takes on the role of a multi-functional feature that includes a desk, a dressing table and a lounger. This feature is found throughout all rooms. The ground level boasts an innovative lighting system and comprises a restaurant and a lobby. The first floor houses a state-of-the-art gymnasium, while the top level is where the guests find a faculty club. As the main highlight of the establishment, the faculty club flaunts floor to ceiling glazing and includes a private dining area, comfortable sofas, club chairs and a cozy fireplace.
Overall, the IZB Residence has 42 rooms, out of which six are suites, twelve are junior suites and 24 are regular rooms.
From the architect:
Landmark at Campus
The eight story IZB Residence creates a significant center of Campus Martinsried with its organic shapes and becomes a distinctive landmark by its unique architectural language. “It was our aspiration to generate tension between organic, floating shapes and dynamic flow architectural language. At the same time a certain degree of harmony and well-being”, explains Jürgen Stark.
Architecture
The hotel stands up as a solitaire within the surrounding of the Innovation Center for Biotechnology. The first two floors conclude the existing square and create an urban character. The unitized façade is covered by an additional white aluminum skin. External blinds could be avoided by solar control glass and decentralized A/C. Curtains and blinds allow for individual use in each room. The dynamic and distance between the floating and curved skin and the glazing behind creates a strong three dimensional appearance. The depth and layout of the façade cut outs implement a comfortable feeling in the rooms.
Interior Design
The dynamic, floating structure of the façade continues throughout the interior of the individual rooms as a multi-functional feature including desk, lounger and dressing table. The rooms appear more generous by the open character of the bathrooms. The high end standards in technical features as well as design makes each and every room to an oasis of comfort for communication, business activity or just for relaxation.
The ground floor offers exciting views between restaurant, lobby and the external surrounding. A distinctive, innovative lighting system emphasizes the atmosphere. Small areas and spacious rooms create a feeling of tension. The dynamics and the floating spaces within the plan connect the individual purposes in a very harmonic way, which gives the open space a high level of wellbeing.
The sophisticated color scheme from black, grey to white achieves an elegant ambiance. From the basement with dark tones ascending to the brilliant white faculty club on the top floor. The mixture of extravagant architecture, modern interior and innovative lighting design creates an exquisite atmosphere promoting communication and appealing ambiance. The first floor offers an additional gym for work out.
The faculty club with its floor to ceiling glazing on the seventh floor is the highlight of the building. An exclusive 170m² spacious clubroom offers a stunning golden, metal bar. It provides cozy sofas for intimate communication, a private dining area and club chairs in front of a fireplace. The terrace extends the space and presents a breathtaking view to the Alps of Bavaria.
Hotel Concept
The concept of the IZB Residence is unique in the world. Everything aims to provide comfortable and inspiring atmosphere for guests coming from international elite research background visiting Campus Martinsried. The 42 rooms, six suites, twelve junior suites and 24 rooms accommodate scientists and business travelers from all over the world.
Architects: Stark Architekten
Location: Am Klopferspitz 2, 82152 Planegg, Germany
Design Team: Claudia Kammerer, Christine Röger, Markus Müller, Nicole Arndt
Area: 2000.0 sqm
Year: 2014
Photographs: Robert Sprang
Interior Design: Stark Architekten
Project Manager: Jürgen Stark
Owner: Fördergesellschaft IZB mbH, Planegg/Martinsried
Project Management: Hitzler Ingenieure, München
Landscaping: Schegk Landschaftsarchitekten+ Stadtplaner
Structural Engineer: Behringer Beratende Ingenieure GmbH
Building Physics: PMI Ingenieurgesellschaft mbH
Hvac Engineer: Climaplan GmbH
Electrical Engineer: IB Ewald+Grau
Main Supplier: Occhio, Hotelys, Designfunktion, technogym, Schüco, Warema, Hain Natur-Böden

















More Similar Articles Like This
Exquisite Crossacres Mansion In Surrey, England
Loving Luxury at Mardan Palace Resort, Turkey
The Sophisticated Casa Villa Flamingo in Spain
70 Shades of Green: Benjamin Moore’s Vibrant Paint Colors
Exploring the New World of Luxury Hoteling
Gorgeous And Spacious Home In Sunset Strip
Best paint colors for the living room
Opulent Mandarin Oriental Hotel in Paris