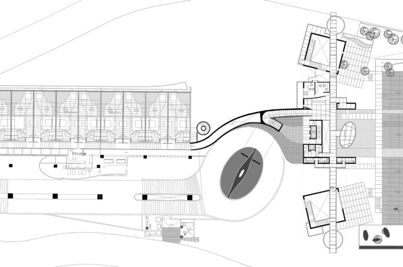
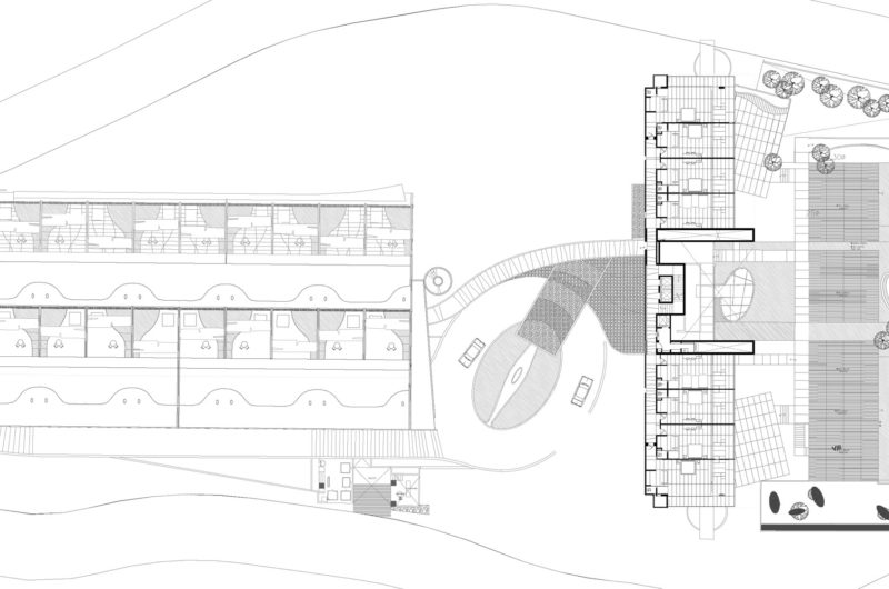
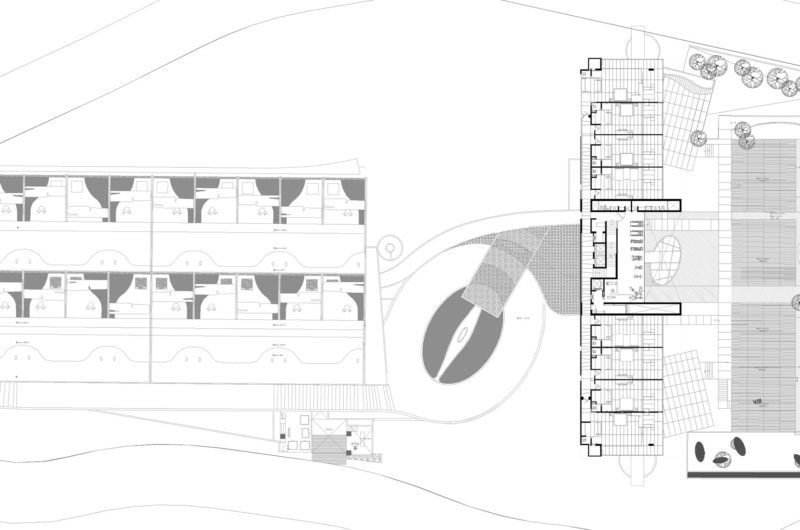
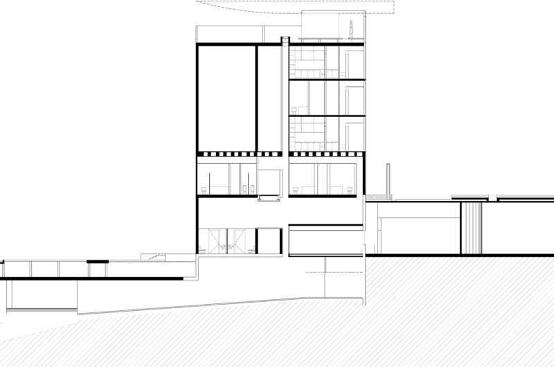
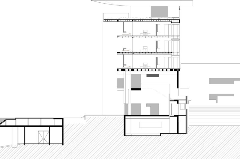
Taller Aragones completed the Encanto Hotel in 2012 and the result is spectacular. Located in Acapulco, Mexic, this contemporary wonder was created with great attention and dedication. By only looking at these pictures you would have never guessed that this incredible construction was created with little resources, economic materials and local labor. Its spaces are very intimate and offer the guests all the comfort and tranquility they need.
Fine architecture is transposed into such architectural masterpieces. Here’s the living proof that high-quality leaves a trace in time.
Photos by Joe Fletcher


















































More Similar Articles Like This
6 Garden and Lawn Tips to Get Ready for Spring
Unique Click Clack Hotel In Bogota, Colombia
Outstanding Bodrum Houses in Yalikavak, Turkey
Exploring the New World of Luxury Hoteling
Beach House CN – A Superb Contemporary Home in Peru
10 Different Types of Blue Paint Colors
Behr’s Brilliant Blues: 70 Shades of Stunning Paint Colors
Spectacular Luxury House in Sarasota, Florida by DSDG Inc. Architects