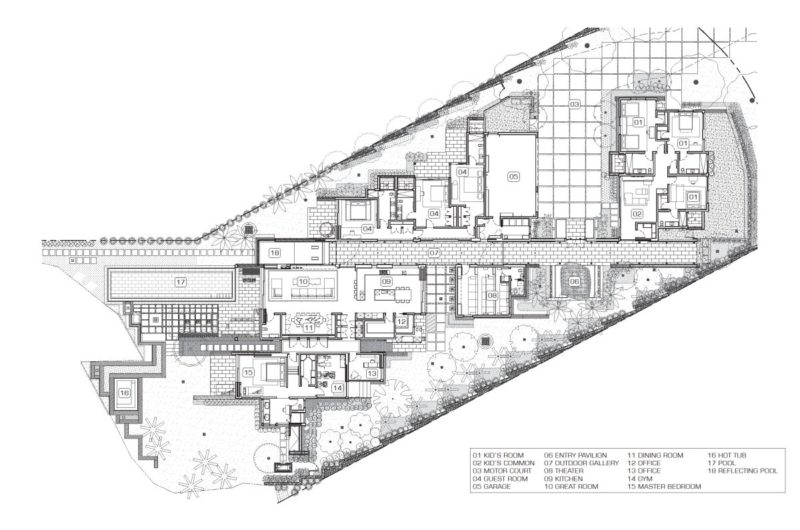
The Kona Residence is an architectural masterpiece placed between cooled lava flows and gently modeled by Santa Monica-based studio Belzberg Architects in collaboration with interior design studio MKL Studio. It is the winner of Freestanding House Award from Interior Design magazine 2010 edition.
This 8,000 sq. ft. exquisite construction offers gorgeous views of the eastern volcanic mountain ranges and also of the western ocean horizons.
It’s very important for a home to be eco-friendly so, in order to accomplish this status, the Kona house has two separate arrays of roof mounted photovoltaic panels to maintain the environmental sensitivityanduses darker lava stone to help heat the pool water with the help of solar radiation.
Almost every detail of the house is created upon the Hawaiian tradition and as an example to that, you may notice the entry pavilion which reflects the traditional gift specific to the arrival ceremony.
We must say that we love the Hawaiian hospitality and now, we’ve started to like their homes as well.





















More Similar Articles Like This
Marvelous Anantara Dhigu Resort
Beautiful Apartment in Stockholm for $1 Million
Amazing Four Seasons Resort Bora Bora
Spectacular Rooftop Apartment by Innocad
Stunning Sustainable Home in Costa Rica by SPG Architects
Best paint colors for the living room
Exceptional Coronado Bay Front Estate in California
Green Gables Home In Fairfield, Connecticut, United States